Woning de Bente 7 Dalen

de Bente 7, 7751GK Dalen

Ontvang updates voor Dalen

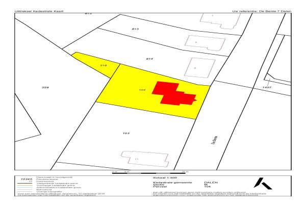
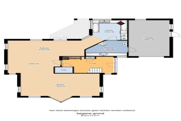
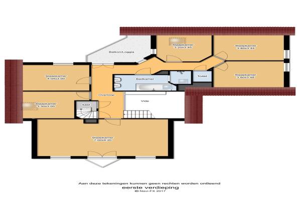
Het adres van deze woning uit 1991 is de Bente 7 te Dalen. Het pand heeft een oppervlakte van 225m² en een perceeloppervlakte van 1060m² en heeft 10 kamers kamers waarvan 8 slaapkamers. De geschatte waarde van deze woning is € 575.000.

Bekijk alle woningen in Dalen

Gegevens van Villa, vrijstaande woning

Bouwjaar
1991
Geschatte waarde
€ 575.000
Oppervlakte
225 m2
Inhoud
820 m3
Aantal kamers
10 kamers
Slaapkamers
8
Badkamers
1 badkamer en 2 aparte toiletten
Soort bouw
Bestaande bouw
Eigendomssituatie
Volle eigendom
Ligging
Aan bosrand en aan drukke weg
Tuin
Tuin rondom

Voorzieningen in de buurt

Boodschappen0,6 km
Grote supermarkt0,7 km
Cafetaria0,7 km
Restaurant0,6 km
Huisarts0,7 km
Ziekenhuis15,8 km
Kinderdagverblijf0,7 km
BSO0,7 km
Alle voorzieningen in Dalen

Binnenkijken bij de Bente 7 te Dalen

Meer meldingen in deze omgeving

Binnenkijken bij
Dinsdag 25-11-2025
Stationsstraat 10, 7751GE Dalen

Binnenkijken bij
Vrijdag 14-11-2025
Wilgenstraat 10, 7751AR Dalen

Faillissement
Woensdag 12-11-2025
Burg ten Holteweg 37, 7751CR Dalen

Binnenkijken bij
Dinsdag 11-11-2025
Kolkakkers 98, 7751DK Dalen

Binnenkijken bij
Woensdag 29-10-2025
Burg ten Holteweg 31, 7751CR Dalen

112 melding
Vrijdag 24-10-2025 om 12:15
Maandehof, 7751CZ Dalen

112 melding
Vrijdag 24-10-2025 om 12:12
Maandehof, 7751CZ Dalen

Binnenkijken bij
Vrijdag 17-10-2025
Schoolstraat 8, 7751GJ Dalen

Direct een e-mail ontvangen bij nieuwe meldingen in deze regio?

Meld je dan GRATIS aan voor de Oozo Alert service voor Dalen

Instellen

Meer nieuws in Dalen

Weten hoe eenvoudig het is om af te vallen? Zonder pillen en smeersels en zonder je in het zweet te werken!
Kijk op eenvoudig-afvallen.nl

© 2012 - 2025 OOZO.nl - info@oozo.nl - Gegevens verwijderen? | Disclaimer | Privacy statement