Woning Eslawâld 17 Feanwâlden

Eslawâld 17, 9269VH Feanwâlden

Ontvang updates voor Feanwâlden

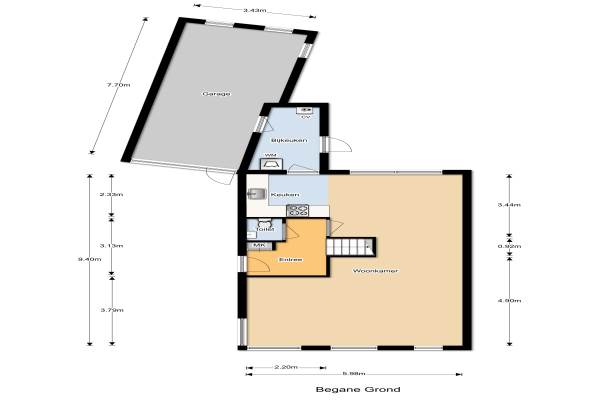
Het adres van deze woning uit 1996 is Eslawâld 17 te Feanwâlden. Het pand heeft een oppervlakte van 100m² en een perceeloppervlakte van 329m² en heeft 3 kamers kamers waarvan 2 slaapkamers. De geschatte waarde van deze woning is € 195.000.

Bekijk alle woningen in Feanwâlden

Gegevens van Eengezinswoning, 2-onder-1-kapwoning

Bouwjaar
1996
Geschatte waarde
€ 195.000
Oppervlakte
100 m2
Inhoud
413 m3
Aantal kamers
3 kamers
Slaapkamers
2
Badkamers
1 badkamer en 1 apart toilet
Soort bouw
Bestaande bouw
Eigendomssituatie
Volle eigendom
Ligging
Aan rustige weg, in woonwijk en vrij uitzicht
Tuin
Achtertuin en voortuin
Achtertuin
114 m² (19m diep en 6m breed)

Voorzieningen in de buurt

Boodschappen0,7 km
Grote supermarkt0,8 km
Cafetaria0,8 km
Restaurant1,0 km
Huisarts0,8 km
Ziekenhuis16,9 km
Kinderdagverblijf0,8 km
BSO0,6 km
Alle voorzieningen in Feanwâlden

Binnenkijken bij Eslawâld 17 te Feanwâlden

Meer meldingen in deze omgeving

Binnenlands nieuws
Vrijdag 12-12-2025
Feanwâlden

Nieuw bedrijf
December 2025
Stinswei 522, 9269TD Feanwâlden

Nieuw bedrijf
December 2025
Ljurkstrjitte 17, 9269NB Feanwâlden

Binnenlands nieuws
Maandag 1-12-2025
Feanwâlden

Binnenkijken bij
Vrijdag 14-11-2025
Idsingha 9, 9269VJ Feanwâlden

Nieuw bedrijf
November 2025
Swellestrjitte 4, 9269NN Feanwâlden

Binnenkijken bij
Dinsdag 11-11-2025
Tsjerkepaad 4, 9269VG Feanwâlden

Nieuw bedrijf
November 2025
Feintensloane 20, 9269VC Feanwâlden

Direct een e-mail ontvangen bij nieuwe meldingen in deze regio?

Meld je dan GRATIS aan voor de Oozo Alert service voor Feanwâlden

Instellen

Meer nieuws in Feanwâlden

Weten hoe eenvoudig het is om af te vallen? Zonder pillen en smeersels en zonder je in het zweet te werken!
Kijk op eenvoudig-afvallen.nl

© 2012 - 2025 OOZO.nl - info@oozo.nl - Gegevens verwijderen? | Disclaimer | Privacy statement