Woning Jan Provostlaan 76 Bilthoven

Jan Provostlaan 76, 3723RD Bilthoven

Ontvang updates voor De Leyen

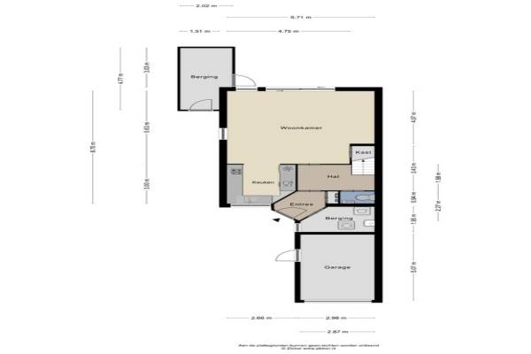
Het adres van deze woning uit 1989 is Jan Provostlaan 76 te Bilthoven. Het pand heeft een oppervlakte van 128m² en een perceeloppervlakte van 218m² en heeft 6 kamers kamers waarvan 5 slaapkamers. De geschatte waarde van deze woning is € 675.000.

Bekijk alle woningen in De Leyen

Gegevens van Eengezinswoning

Bouwjaar
1989
Geschatte waarde
€ 675.000
Oppervlakte
128 m2
Inhoud
523 m3
Aantal kamers
6 kamers
Slaapkamers
5
Badkamers
1 badkamer en 1 apart toilet
Soort bouw
Bestaande bouw
Eigendomssituatie
Volle eigendom
Ligging
In woonwijk
Tuin
Tuin

Voorzieningen in de buurt

Boodschappen3,6 km
Grote supermarkt4,0 km
Cafetaria2,1 km
Restaurant0,5 km
Huisarts3,9 km
Ziekenhuis6,2 km
Kinderdagverblijf0,8 km
BSO0,8 km
Alle voorzieningen in De Leyen

Binnenkijken bij Jan Provostlaan 76 te Bilthoven

Meer meldingen in deze omgeving

Binnenkijken bij
Zaterdag 11-10-2025
Satijnvlinder 12, 3723RG Bilthoven

Binnenkijken bij
Zaterdag 11-10-2025
Hugo van der Goeslaan 41, 3723WL Bilthoven

Binnenkijken bij
Zaterdag 11-10-2025
Hugo van der Goeslaan 30, 3723WL Bilthoven

Binnenkijken bij
Donderdag 9-10-2025
Prunuslaan 14, 3723WB Bilthoven

Nieuw bedrijf
Oktober 2025
Dudokkwartier 16, 3723AV Bilthoven

Nieuw bedrijf
Oktober 2025
Pieter Noorwitskwartier 13, 3723AP Bilthoven

Nieuw bedrijf
Oktober 2025
Pieter Breughellaan 24, 3723PB Bilthoven

Binnenkijken bij
Donderdag 2-10-2025
Rogier van der Weydenlaan 41, 3723BD Bilthoven

Direct een e-mail ontvangen bij nieuwe meldingen in deze regio?

Meld je dan GRATIS aan voor de Oozo Alert service voor De Leyen

Instellen

Meer nieuws in De Leyen

Weten hoe eenvoudig het is om af te vallen? Zonder pillen en smeersels en zonder je in het zweet te werken!
Kijk op eenvoudig-afvallen.nl

© 2012 - 2025 OOZO.nl - info@oozo.nl - Gegevens verwijderen? | Disclaimer | Privacy statement