Woning Veldlaan 40 Groenekan

Veldlaan 40, 3737AR Groenekan

Ontvang updates voor Groenekan

Het adres van deze woning uit 1960 is Veldlaan 40 te Groenekan. Het pand heeft een oppervlakte van 91m² en een perceeloppervlakte van 285m² en heeft 5 kamers kamers waarvan 4 slaapkamers. De geschatte waarde van deze woning is € 450.000.

Bekijk alle woningen in Groenekan

Gegevens van Eengezinswoning, halfvrijstaande woning

Bouwjaar
1960
Geschatte waarde
€ 450.000
Oppervlakte
91 m2
Inhoud
328 m3
Aantal kamers
5 kamers
Slaapkamers
4
Badkamers
1 badkamer en 1 apart toilet
Soort bouw
Bestaande bouw
Eigendomssituatie
Volle eigendom
Ligging
Vrij uitzicht en aan rustige weg
Tuin
Achtertuin, voortuin, zijtuin en zonneterras
Achtertuin
209 m² (21,4m diep en 9,75m breed)

Voorzieningen in de buurt

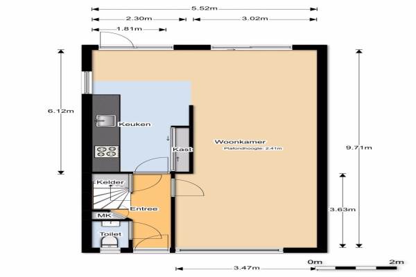
Binnenkijken bij Veldlaan 40 te Groenekan

Meer meldingen in deze omgeving

Faillissement
Woensdag 29-10-2025
Koningin Wilhelminaweg 477, 3737BE Groenekan

Faillissement
Woensdag 29-10-2025
Koningin Wilhelminaweg 477, 3737BE Groenekan

Binnenkijken bij
Zondag 19-10-2025
Beukenburgerlaan 65, 3737MK Groenekan

Nieuw bedrijf
Oktober 2025
Koningin Wilhelminaweg 337, 3737BB Groenekan

Nieuw bedrijf
Oktober 2025
Ruigenhoeksedijk 11, 3737MP Groenekan

Nieuw bedrijf
Oktober 2025
Veldlaan 24, 3737AP Groenekan

Nieuw bedrijf
Oktober 2025
Ruigenhoeksedijk 11, 3737MP Groenekan

Nieuw bedrijf
Oktober 2025
Ruigenhoeksedijk 45, 3737MP Groenekan

Direct een e-mail ontvangen bij nieuwe meldingen in deze regio?

Meld je dan GRATIS aan voor de Oozo Alert service voor Groenekan

Instellen

Meer nieuws in Groenekan

Weten hoe eenvoudig het is om af te vallen? Zonder pillen en smeersels en zonder je in het zweet te werken!
Kijk op eenvoudig-afvallen.nl

© 2012 - 2025 OOZO.nl - info@oozo.nl - Gegevens verwijderen? | Disclaimer | Privacy statement