Woning Hobbe van Baerdtstraat 23 Joure

Hobbe van Baerdtstraat 23, 8501CW Joure

Ontvang updates voor Joure, Blaauwhof

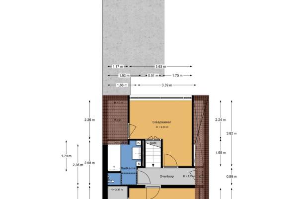
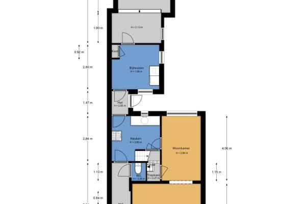
Het adres van deze woning uit 1906 is Hobbe van Baerdtstraat 23 te Joure. Het pand heeft een oppervlakte van 90m² en een perceeloppervlakte van 236m² en heeft 3 kamers kamers waarvan 2 slaapkamers. De geschatte waarde van deze woning is € 219.000.

Bekijk alle woningen in Joure, Blaauwhof

Gegevens van Twee onder één kap

Bouwjaar
1906
Geschatte waarde
€ 219.000
Oppervlakte
90 m2
Inhoud
413 m3
Aantal kamers
3 kamers
Slaapkamers
2
Badkamers
1 badkamer en 1 apart toilet
Soort bouw
Bestaande bouw
Eigendomssituatie
Volle eigendom
Ligging
Aan rustige weg en in woonwijk
Tuin
Tuin

Voorzieningen in de buurt

Boodschappen0,5 km
Grote supermarkt0,5 km
Cafetaria0,5 km
Restaurant0,5 km
Huisarts0,9 km
Ziekenhuis9,8 km
Kinderdagverblijf0,4 km
BSO0,7 km
Alle voorzieningen in Joure, Blaauwhof

Binnenkijken bij Hobbe van Baerdtstraat 23 te Joure

Meer meldingen in deze omgeving

Binnenkijken bij
Vrijdag 26-12-2025
Midstraat 122, 8501AV Joure

Nieuw bedrijf
December 2025
Boeresingel 4, 8501CG Joure

112 melding
Maandag 15-12-2025 om 10:08
Prof Titus Brandsmaweg, 8501GC Joure

Nieuw bedrijf
December 2025
Scheen 32, 8501HG Joure

Binnenkijken bij
Zaterdag 6-12-2025
Harddraversweg 89, 8501CL Joure

112 melding
Donderdag 4-12-2025 om 13:57
Waling Dijkstrastraat, 8501DS Joure

112 melding
Donderdag 4-12-2025 om 10:30
Waling Dijkstrastraat, 8501DS Joure

Nieuw bedrijf
November 2025
Groenendalstraat 10, 8501ET Joure

Direct een e-mail ontvangen bij nieuwe meldingen in deze regio?

Meld je dan GRATIS aan voor de Oozo Alert service voor Joure, Blaauwhof

Instellen

Meer nieuws in Joure, Blaauwhof

Weten hoe eenvoudig het is om af te vallen? Zonder pillen en smeersels en zonder je in het zweet te werken!
Kijk op eenvoudig-afvallen.nl

© 2012 - 2025 OOZO.nl - info@oozo.nl - Gegevens verwijderen? | Disclaimer | Privacy statement