Woning Kwekerijstraat 14 Joure

Kwekerijstraat 14, 8501GN Joure

Ontvang updates voor Joure, Blaauwhof

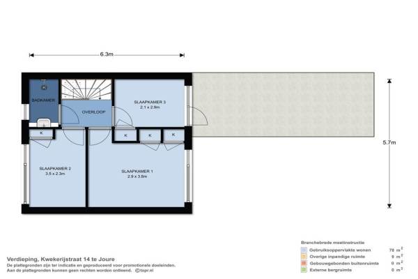
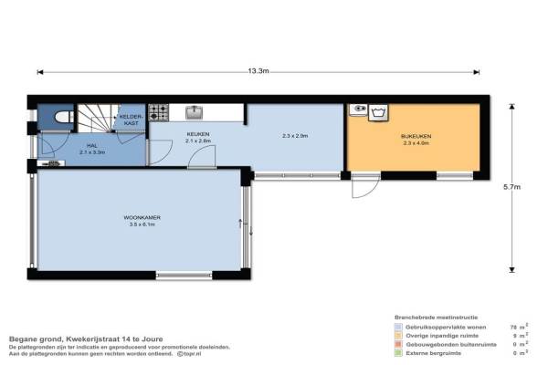
Het adres van deze woning uit 1964 is Kwekerijstraat 14 te Joure. Het pand heeft een oppervlakte van 78m² en een perceeloppervlakte van 268m² en heeft 4 kamers kamers waarvan 3 slaapkamers. De geschatte waarde van deze woning is € 179.000.

Bekijk alle woningen in Joure, Blaauwhof

Gegevens van Eengezinswoning, 2-onder-1-kapwoning

Bouwjaar
1964
Geschatte waarde
€ 179.000
Oppervlakte
78 m2
Inhoud
280 m3
Aantal kamers
4 kamers
Slaapkamers
3
Badkamers
1 badkamer en 1 apart toilet
Soort bouw
Bestaande bouw
Eigendomssituatie
Volle eigendom
Ligging
Aan rustige weg en in woonwijk
Tuin
Achtertuin, voortuin en zonneterras
Achtertuin
135 m² (15m diep en 9m breed)

Voorzieningen in de buurt

Boodschappen0,5 km
Grote supermarkt0,5 km
Cafetaria0,5 km
Restaurant0,5 km
Huisarts0,9 km
Ziekenhuis9,8 km
Kinderdagverblijf0,4 km
BSO0,7 km
Alle voorzieningen in Joure, Blaauwhof

Binnenkijken bij Kwekerijstraat 14 te Joure

Meer meldingen in deze omgeving

Nieuw bedrijf
November 2025
Groenendalstraat 10, 8501ET Joure

Nieuw bedrijf
November 2025
Uilke Boonstralaan 36, 8501EC Joure

112 melding
Maandag 17-11-2025 om 17:22
Pastorielaan, 8501EZ Joure

Binnenkijken bij
Zaterdag 15-11-2025
Midstraat 24, 8501AP Joure

Binnenkijken bij
Dinsdag 11-11-2025
Hoge Zomerdijk 9, 8501ES Joure

112 melding
Woensdag 5-11-2025 om 08:18
Op de Bouwen, Joure

112 melding
Maandag 3-11-2025 om 16:30
Op de Bouwen, Joure

112 melding
Donderdag 30-10-2025 om 12:20
Groenhof, 8501VX Joure

Direct een e-mail ontvangen bij nieuwe meldingen in deze regio?

Meld je dan GRATIS aan voor de Oozo Alert service voor Joure, Blaauwhof

Instellen

Meer nieuws in Joure, Blaauwhof

Weten hoe eenvoudig het is om af te vallen? Zonder pillen en smeersels en zonder je in het zweet te werken!
Kijk op eenvoudig-afvallen.nl

© 2012 - 2025 OOZO.nl - info@oozo.nl - Gegevens verwijderen? | Disclaimer | Privacy statement