Woning Harddraversweg 10 Joure

Harddraversweg 10, 8501CM Joure

Ontvang updates voor Joure, Jonkersland

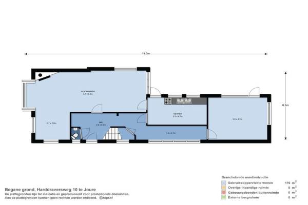
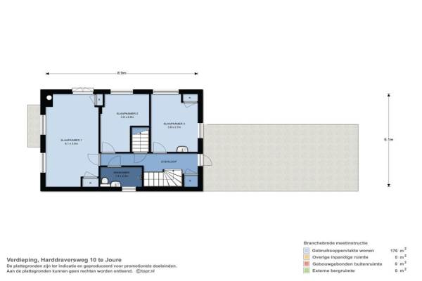
Het adres van deze woning uit 1950 is Harddraversweg 10 te Joure. Het pand heeft een oppervlakte van 176m² en een perceeloppervlakte van 721m² en heeft 7 kamers kamers waarvan 5 slaapkamers. De geschatte waarde van deze woning is € 397.500.

Bekijk alle woningen in Joure, Jonkersland

Gegevens van Eengezinswoning, vrijstaande woning

Bouwjaar
1950
Geschatte waarde
€ 397.500
Oppervlakte
176 m2
Inhoud
450 m3
Aantal kamers
7 kamers
Slaapkamers
5
Badkamers
1 apart toilet
Soort bouw
Bestaande bouw
Eigendomssituatie
Volle eigendom
Ligging
Aan drukke weg, in centrum, vrij uitzicht en beschutte ligging
Tuin
Achtertuin, voortuin en zijtuin
Achtertuin
204 m² (12m diep en 17m breed)

Voorzieningen in de buurt

Boodschappen0,6 km
Grote supermarkt0,7 km
Cafetaria0,6 km
Restaurant0,5 km
Huisarts1,2 km
Ziekenhuis10,3 km
Kinderdagverblijf0,6 km
BSO1,1 km
Alle voorzieningen in Joure, Jonkersland

Binnenkijken bij Harddraversweg 10 te Joure

Meer meldingen in deze omgeving

112 melding
Dinsdag 28-10-2025 om 09:41
Omkromte, 8501CR Joure

112 melding
Dinsdag 28-10-2025 om 09:41
Omkromte, 8501CR Joure

112 melding
Woensdag 1-10-2025 om 09:17
Harddraversweg, 8501CM Joure

112 melding
Dinsdag 30-9-2025 om 18:07
Omkromte, 8501CR Joure

112 melding
Dinsdag 30-9-2025 om 18:07
Omkromte, 8501CR Joure

112 melding
Donderdag 25-9-2025 om 20:35
Harddraversweg, 8501CM Joure

112 melding
Donderdag 25-9-2025 om 20:35
Harddraversweg, 8501CM Joure

Binnenkijken bij
Donderdag 25-9-2025
Omkromte 2A, 8501CR Joure

Direct een e-mail ontvangen bij nieuwe meldingen in deze regio?

Meld je dan GRATIS aan voor de Oozo Alert service voor Joure, Jonkersland

Instellen

Meer nieuws in Joure, Jonkersland

Weten hoe eenvoudig het is om af te vallen? Zonder pillen en smeersels en zonder je in het zweet te werken!
Kijk op eenvoudig-afvallen.nl

© 2012 - 2025 OOZO.nl - info@oozo.nl - Gegevens verwijderen? | Disclaimer | Privacy statement