Woning Warring 48 Joure

Warring 48, 8502BC Joure

Ontvang updates voor Joure, Skipsleat

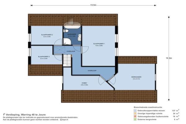
Het adres van deze woning uit 1990 is Warring 48 te Joure. Het pand heeft een oppervlakte van 137m² en een perceeloppervlakte van 353m² en heeft 6 kamers kamers waarvan 6 slaapkamers. De geschatte waarde van deze woning is € 319.000.

Bekijk alle woningen in Joure, Skipsleat

Gegevens van Eengezinswoning, geschakelde woning

Bouwjaar
1990
Geschatte waarde
€ 319.000
Oppervlakte
137 m2
Inhoud
450 m3
Aantal kamers
6 kamers
Slaapkamers
6
Badkamers
1 badkamer en 1 apart toilet
Soort bouw
Bestaande bouw
Eigendomssituatie
Volle eigendom
Ligging
Aan water, aan rustige weg en in woonwijk
Tuin
Achtertuin en voortuin
Achtertuin
156 m² (12m diep en 13m breed)

Voorzieningen in de buurt

Boodschappen1,4 km
Grote supermarkt1,4 km
Cafetaria1,5 km
Restaurant1,4 km
Huisarts1,4 km
Ziekenhuis9,9 km
Kinderdagverblijf1,0 km
BSO1,1 km
Alle voorzieningen in Joure, Skipsleat

Binnenkijken bij Warring 48 te Joure

Meer meldingen in deze omgeving

Nieuw bedrijf
November 2025
Warring 16, 8502BC Joure

Binnenkijken bij
Zondag 16-11-2025
Stjoerboard 7, 8502AA Joure

Binnenkijken bij
Dinsdag 11-11-2025
Want 31, 8502BT Joure

Binnenkijken bij
Woensdag 29-10-2025
Kompas 17, 8502BD Joure

Binnenkijken bij
Woensdag 29-10-2025
Dûkdalf 38, 8502CA Joure

Binnenkijken bij
Woensdag 29-10-2025
Helmhout 4, 8502AE Joure

Binnenkijken bij
Donderdag 9-10-2025
Roefke 5, 8502BV Joure

Binnenkijken bij
Zaterdag 27-9-2025
Kajút 3, 8502BW Joure

Direct een e-mail ontvangen bij nieuwe meldingen in deze regio?

Meld je dan GRATIS aan voor de Oozo Alert service voor Joure, Skipsleat

Instellen

Meer nieuws in Joure, Skipsleat

Weten hoe eenvoudig het is om af te vallen? Zonder pillen en smeersels en zonder je in het zweet te werken!
Kijk op eenvoudig-afvallen.nl

© 2012 - 2025 OOZO.nl - info@oozo.nl - Gegevens verwijderen? | Disclaimer | Privacy statement