Woning Skroef 48 Joure

Skroef 48, 8502BR Joure

Ontvang updates voor Joure, Skipsleat

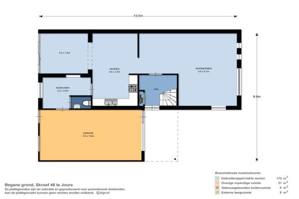
Het adres van deze woning uit 1994 is Skroef 48 te Joure. Het pand heeft een oppervlakte van 173m² en een perceeloppervlakte van 412m² en heeft 7 kamers kamers waarvan 5 slaapkamers. De geschatte waarde van deze woning is € 289.000.

Bekijk alle woningen in Joure, Skipsleat

Gegevens van Eengezinswoning, 2-onder-1-kapwoning

Bouwjaar
1994
Geschatte waarde
€ 289.000
Oppervlakte
173 m2
Inhoud
626 m3
Aantal kamers
7 kamers
Slaapkamers
5
Badkamers
1 badkamer en 1 apart toilet
Soort bouw
Bestaande bouw
Eigendomssituatie
Volle eigendom
Ligging
Aan rustige weg, in woonwijk en beschutte ligging
Tuin
Achtertuin, voortuin en zijtuin
Achtertuin
412 m² (14m diep en 13m breed)

Voorzieningen in de buurt

Boodschappen1,4 km
Grote supermarkt1,4 km
Cafetaria1,5 km
Restaurant1,4 km
Huisarts1,4 km
Ziekenhuis9,9 km
Kinderdagverblijf1,0 km
BSO1,1 km
Alle voorzieningen in Joure, Skipsleat

Binnenkijken bij Skroef 48 te Joure

Meer meldingen in deze omgeving

Binnenkijken bij
Maandag 9-3-2026
Helmhout 167, 8502BP Joure

Nieuw bedrijf
Maart 2026
Aliehoeve 9, 8502CX Joure

Binnenkijken bij
Zaterdag 7-3-2026
Roefke 33, 8502BV Joure

Binnenkijken bij
Donderdag 5-3-2026
Fokkestaach 10, 8502BG Joure

Nieuw bedrijf
Maart 2026
Steiger 19, 8502CG Joure

Binnenkijken bij
Zaterdag 21-2-2026
Warring 89, 8502BB Joure

112 melding
Maandag 16-2-2026 om 06:24
Barte, 8502CH Joure

Nieuw bedrijf
Februari 2026
Helmhout 52, 8502AE Joure

Direct een e-mail ontvangen bij nieuwe meldingen in deze regio?

Meld je dan GRATIS aan voor de Oozo Alert service voor Joure, Skipsleat

Instellen

Meer nieuws in Joure, Skipsleat

Weten hoe eenvoudig het is om af te vallen? Zonder pillen en smeersels en zonder je in het zweet te werken!
Kijk op eenvoudig-afvallen.nl

© 2012 - 2026 OOZO.nl - info@oozo.nl - Gegevens verwijderen? | Disclaimer | Privacy statement