Woning Helmhout 110 Joure

Helmhout 110, 8502AE Joure

Ontvang updates voor Joure, Skipsleat

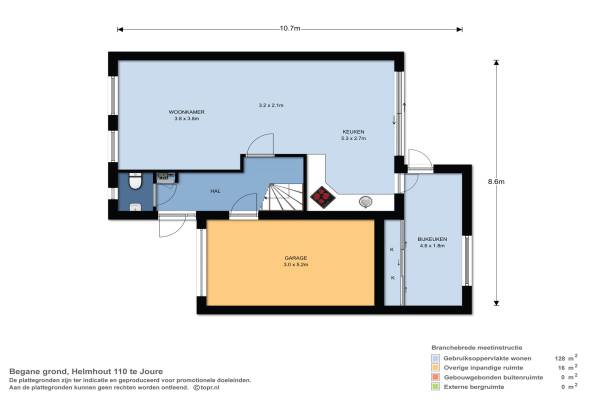
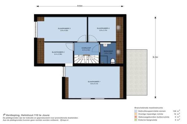
Het adres van deze woning uit 1995 is Helmhout 110 te Joure. Het pand heeft een oppervlakte van 128m² en een perceeloppervlakte van 302m² en heeft 5 kamers kamers waarvan 4 slaapkamers. De geschatte waarde van deze woning is € 265.000.

Bekijk alle woningen in Joure, Skipsleat

Gegevens van Eengezinswoning, 2-onder-1-kapwoning

Bouwjaar
1995
Geschatte waarde
€ 265.000
Oppervlakte
128 m2
Inhoud
366 m3
Aantal kamers
5 kamers
Slaapkamers
4
Badkamers
1 badkamer en 1 apart toilet
Soort bouw
Bestaande bouw
Ligging
In woonwijk en beschutte ligging
Tuin
Achtertuin, voortuin en zonneterras
Achtertuin
76 m² (9,5m diep en 8m breed)

Voorzieningen in de buurt

Boodschappen1,4 km
Grote supermarkt1,4 km
Cafetaria1,5 km
Restaurant1,4 km
Huisarts1,4 km
Ziekenhuis9,9 km
Kinderdagverblijf1,0 km
BSO1,1 km
Alle voorzieningen in Joure, Skipsleat

Binnenkijken bij Helmhout 110 te Joure

Meer meldingen in deze omgeving

Nieuw bedrijf
November 2025
Warring 16, 8502BC Joure

Binnenkijken bij
Dinsdag 11-11-2025
Want 31, 8502BT Joure

Binnenkijken bij
Woensdag 29-10-2025
Kompas 17, 8502BD Joure

Binnenkijken bij
Woensdag 29-10-2025
Dûkdalf 38, 8502CA Joure

Binnenkijken bij
Woensdag 29-10-2025
Helmhout 4, 8502AE Joure

Binnenkijken bij
Donderdag 9-10-2025
Roefke 5, 8502BV Joure

Binnenkijken bij
Zaterdag 27-9-2025
Kajút 3, 8502BW Joure

Binnenkijken bij
Maandag 22-9-2025
Warring 29, 8502BA Joure

Direct een e-mail ontvangen bij nieuwe meldingen in deze regio?

Meld je dan GRATIS aan voor de Oozo Alert service voor Joure, Skipsleat

Instellen

Meer nieuws in Joure, Skipsleat

Weten hoe eenvoudig het is om af te vallen? Zonder pillen en smeersels en zonder je in het zweet te werken!
Kijk op eenvoudig-afvallen.nl

© 2012 - 2025 OOZO.nl - info@oozo.nl - Gegevens verwijderen? | Disclaimer | Privacy statement