Woning Bakboard 24 Joure

Bakboard 24, 8502AM Joure

Ontvang updates voor Joure, Skipsleat

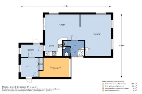
Het adres van deze woning uit 1988 is Bakboard 24 te Joure. Het pand heeft 7 kamers kamers waarvan 5 slaapkamers. De geschatte waarde van deze woning is € 398.000.

Bekijk alle woningen in Joure, Skipsleat

Gegevens van Eengezinswoning, vrijstaande woning

Bouwjaar
1988
Geschatte waarde
€ 398.000
Oppervlakte
0 m2
Inhoud
436 m3
Aantal kamers
7 kamers
Slaapkamers
5
Badkamers
1 badkamer en 2 aparte toiletten
Soort bouw
Bestaande bouw
Eigendomssituatie
Volle eigendom
Ligging
Aan rustige weg, in woonwijk, vrij uitzicht en beschutte ligging
Tuin
Achtertuin, voortuin, zijtuin en zonneterras
Achtertuin
171 m² (9,5m diep en 18m breed)

Voorzieningen in de buurt

Boodschappen1,4 km
Grote supermarkt1,4 km
Cafetaria1,5 km
Restaurant1,4 km
Huisarts1,4 km
Ziekenhuis9,9 km
Kinderdagverblijf1,0 km
BSO1,1 km
Alle voorzieningen in Joure, Skipsleat

Binnenkijken bij Bakboard 24 te Joure

Meer meldingen in deze omgeving

Binnenkijken bij
Maandag 9-3-2026
Helmhout 167, 8502BP Joure

Nieuw bedrijf
Maart 2026
Aliehoeve 9, 8502CX Joure

Binnenkijken bij
Zaterdag 7-3-2026
Roefke 33, 8502BV Joure

Binnenkijken bij
Donderdag 5-3-2026
Fokkestaach 10, 8502BG Joure

Nieuw bedrijf
Maart 2026
Steiger 19, 8502CG Joure

Binnenkijken bij
Zaterdag 21-2-2026
Warring 89, 8502BB Joure

112 melding
Maandag 16-2-2026 om 06:24
Barte, 8502CH Joure

Nieuw bedrijf
Februari 2026
Helmhout 52, 8502AE Joure

Direct een e-mail ontvangen bij nieuwe meldingen in deze regio?

Meld je dan GRATIS aan voor de Oozo Alert service voor Joure, Skipsleat

Instellen

Meer nieuws in Joure, Skipsleat

Weten hoe eenvoudig het is om af te vallen? Zonder pillen en smeersels en zonder je in het zweet te werken!
Kijk op eenvoudig-afvallen.nl

© 2012 - 2026 OOZO.nl - info@oozo.nl - Gegevens verwijderen? | Disclaimer | Privacy statement