Woning Prinses Christinastraat 8 Joure

Prinses Christinastraat 8, 8501JB Joure

Ontvang updates voor Joure, Zuiderveld

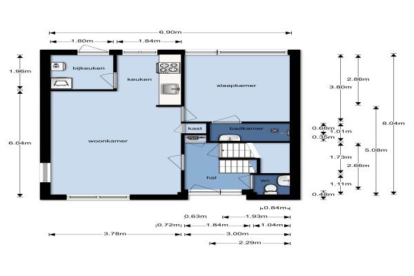
Het adres van deze woning uit 1968 is Prinses Christinastraat 8 te Joure. Het pand heeft een oppervlakte van 85m² en een perceeloppervlakte van 296m² en heeft 4 kamers kamers waarvan 3 slaapkamers. De geschatte waarde van deze woning is € 174.000.

Bekijk alle woningen in Joure, Zuiderveld

Gegevens van Eengezinswoning, 2-onder-1-kapwoning

Bouwjaar
1968
Geschatte waarde
€ 174.000
Oppervlakte
85 m2
Inhoud
312 m3
Aantal kamers
4 kamers
Slaapkamers
3
Badkamers
1 badkamer en 1 apart toilet
Soort bouw
Bestaande bouw
Eigendomssituatie
Volle eigendom
Tuin
Achtertuin, voortuin en zijtuin
Achtertuin
108 m² (9m diep en 12m breed)

Voorzieningen in de buurt

Boodschappen0,4 km
Grote supermarkt0,4 km
Cafetaria0,5 km
Restaurant0,6 km
Huisarts1,5 km
Ziekenhuis9,1 km
Kinderdagverblijf0,5 km
BSO0,6 km
Alle voorzieningen in Joure, Zuiderveld

Binnenkijken bij Prinses Christinastraat 8 te Joure

Meer meldingen in deze omgeving

Nieuw bedrijf
December 2025
Prins Bernhardlaan 123, 8501JD Joure

Nieuw bedrijf
December 2025
Prinses Christinastraat 18, 8501JB Joure

112 melding
Zondag 30-11-2025 om 09:59
Sewei, 8501SP Joure

Binnenkijken bij
Zaterdag 29-11-2025
Prinses Beatrixstraat 4, 8501HV Joure

Binnenkijken bij
Vrijdag 14-11-2025
Maria Louisestraat 3, 8501LA Joure

Binnenkijken bij
Dinsdag 11-11-2025
Rode Molenstraat 11, 8501LJ Joure

Binnenkijken bij
Donderdag 30-10-2025
Dr Eeltje Halbertsmastraat 25, 8501JT Joure

Binnenkijken bij
Donderdag 30-10-2025
Rinzemastraat 2, 8501LN Joure

Direct een e-mail ontvangen bij nieuwe meldingen in deze regio?

Meld je dan GRATIS aan voor de Oozo Alert service voor Joure, Zuiderveld

Instellen

Meer nieuws in Joure, Zuiderveld

Weten hoe eenvoudig het is om af te vallen? Zonder pillen en smeersels en zonder je in het zweet te werken!
Kijk op eenvoudig-afvallen.nl

© 2012 - 2025 OOZO.nl - info@oozo.nl - Gegevens verwijderen? | Disclaimer | Privacy statement