Woning Het Brekkense Wiel 214 Lemmer

Het Brekkense Wiel 214, 8531RX Lemmer

Ontvang updates voor Lemmer-Frieslandpark

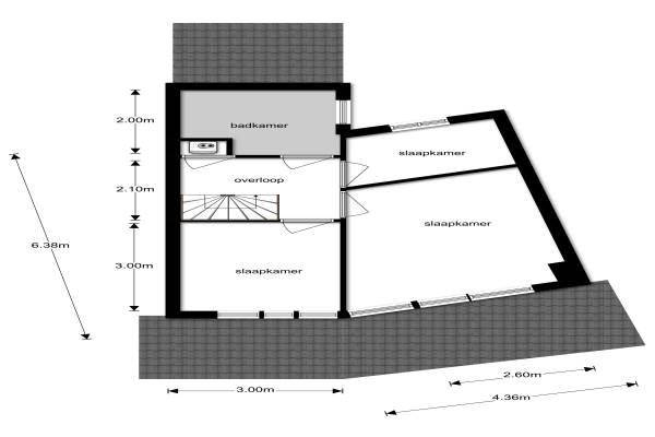
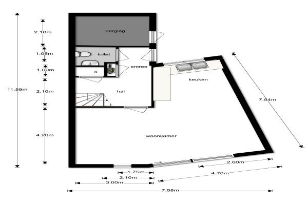
Het adres van deze woning uit 1993 is Het Brekkense Wiel 214 te Lemmer. Het pand heeft een oppervlakte van 100m² en een perceeloppervlakte van 175m² en heeft 5 kamers kamers waarvan 3 slaapkamers. De geschatte waarde van deze woning is € 224.000.

Bekijk alle woningen in Lemmer-Frieslandpark

Gegevens van Eengezinswoning, tussenwoning

Bouwjaar
1993
Geschatte waarde
€ 224.000
Oppervlakte
100 m2
Inhoud
275 m3
Aantal kamers
5 kamers
Slaapkamers
3
Badkamers
1 badkamer en 1 apart toilet
Soort bouw
Bestaande bouw
Eigendomssituatie
Volle eigendom
Ligging
Aan water, aan rustige weg en aan vaarwater
Tuin
Achtertuin
Achtertuin
84 m² (8m diep en 10,5m breed)

Voorzieningen in de buurt

Boodschappen1,4 km
Grote supermarkt1,5 km
Cafetaria1,3 km
Restaurant0,6 km
Huisarts2,0 km
Ziekenhuis1,9 km
Kinderdagverblijf1,2 km
BSO1,2 km
Alle voorzieningen in Lemmer-Frieslandpark

Binnenkijken bij Het Brekkense Wiel 214 te Lemmer

Meer meldingen in deze omgeving

Nieuw bedrijf
December 2025
Kemphaan 18, 8532AR Lemmer

Binnenkijken bij
Vrijdag 28-11-2025
Het Brekkense Wiel 30, 8531RS Lemmer

Binnenkijken bij
Vrijdag 21-11-2025
Het Brekkense Wiel 36, 8531RS Lemmer

Binnenkijken bij
Dinsdag 11-11-2025
Het Brekkense Wiel 138, 8531RW Lemmer

Binnenkijken bij
Dinsdag 11-11-2025
Meerkoet 15, 8532BD Lemmer

Nieuw bedrijf
November 2025
Scholekster 7, 8532AP Lemmer

Nieuw bedrijf
November 2025
Het Brekkense Wiel 32, 8531RS Lemmer

Nieuw bedrijf
November 2025
Graspieper 1, 8532AT Lemmer

Direct een e-mail ontvangen bij nieuwe meldingen in deze regio?

Meld je dan GRATIS aan voor de Oozo Alert service voor Lemmer-Frieslandpark

Instellen

Meer nieuws in Lemmer-Frieslandpark

Weten hoe eenvoudig het is om af te vallen? Zonder pillen en smeersels en zonder je in het zweet te werken!
Kijk op eenvoudig-afvallen.nl

© 2012 - 2025 OOZO.nl - info@oozo.nl - Gegevens verwijderen? | Disclaimer | Privacy statement