Woning 't Wijd 20 Lemmer

't Wijd 20, 8531RB Lemmer

Ontvang updates voor Lemmer-Frieslandpark

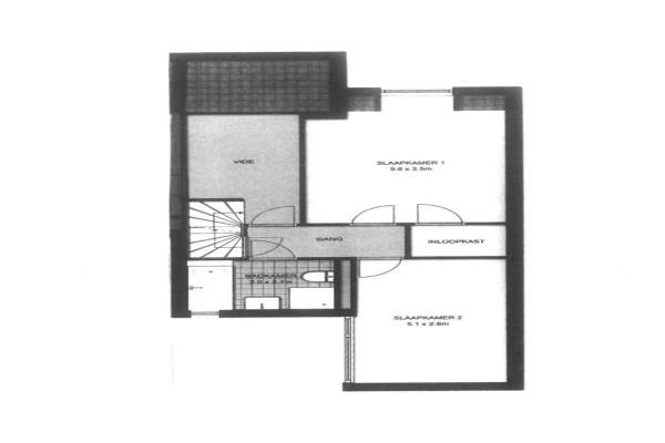
Het adres van deze woning uit 1980 is 't Wijd 20 te Lemmer. Het pand heeft een oppervlakte van 135m² en een perceeloppervlakte van 296m² en heeft 4 kamers kamers waarvan 3 slaapkamers. De geschatte waarde van deze woning is € 265.000.

Bekijk alle woningen in Lemmer-Frieslandpark

Gegevens van Eengezinswoning, tussenwoning

Bouwjaar
1980
Geschatte waarde
€ 265.000
Oppervlakte
135 m2
Inhoud
400 m3
Aantal kamers
4 kamers
Slaapkamers
3
Soort bouw
Bestaande bouw
Eigendomssituatie
Volle eigendom
Ligging
Aan water en aan vaarwater

Voorzieningen in de buurt

Boodschappen1,4 km
Grote supermarkt1,5 km
Cafetaria1,3 km
Restaurant0,6 km
Huisarts2,0 km
Ziekenhuis1,9 km
Kinderdagverblijf1,2 km
BSO1,2 km
Alle voorzieningen in Lemmer-Frieslandpark

Binnenkijken bij 't Wijd 20 te Lemmer

Meer meldingen in deze omgeving

Binnenkijken bij
Woensdag 29-10-2025
Kievit 11, 8532AN Lemmer

112 melding
Vrijdag 24-10-2025 om 10:41
Heegermeerstraat, 8531RN Lemmer

112 melding
Donderdag 23-10-2025 om 15:42
Heegermeerstraat, 8531RN Lemmer

112 melding
Donderdag 23-10-2025 om 15:42
Heegermeerstraat, 8531RN Lemmer

112 melding
Dinsdag 21-10-2025 om 14:07
Brekkenweg, 8531PM Lemmer

Nieuw bedrijf
Oktober 2025
Meerkoet 12, 8532BD Lemmer

112 melding
Zaterdag 11-10-2025 om 09:24
Brekkenweg, 8531PM Lemmer

112 melding
Zaterdag 11-10-2025 om 09:23
Brekkenweg, 8531PM Lemmer

Direct een e-mail ontvangen bij nieuwe meldingen in deze regio?

Meld je dan GRATIS aan voor de Oozo Alert service voor Lemmer-Frieslandpark

Instellen

Meer nieuws in Lemmer-Frieslandpark

Weten hoe eenvoudig het is om af te vallen? Zonder pillen en smeersels en zonder je in het zweet te werken!
Kijk op eenvoudig-afvallen.nl

© 2012 - 2025 OOZO.nl - info@oozo.nl - Gegevens verwijderen? | Disclaimer | Privacy statement