Woning Prinsessekade 14 Lemmer

Prinsessekade 14, 8531HG Lemmer

Ontvang updates voor Lemmer-Kom

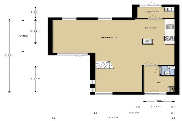
Het adres van deze woning uit 1982 is Prinsessekade 14 te Lemmer. Het pand heeft een oppervlakte van 132m² en een perceeloppervlakte van 206m² en heeft 7 kamers kamers waarvan 6 slaapkamers. De geschatte waarde van deze woning is € 322.500.

Bekijk alle woningen in Lemmer-Kom

Gegevens van Herenhuis, geschakelde woning

Bouwjaar
1982
Geschatte waarde
€ 322.500
Oppervlakte
132 m2
Inhoud
472 m3
Aantal kamers
7 kamers
Slaapkamers
6
Badkamers
1 badkamer en 1 apart toilet
Soort bouw
Bestaande bouw
Eigendomssituatie
Volle eigendom
Tuin
Achtertuin
Achtertuin
85 m² (10m diep en 8,5m breed)

Voorzieningen in de buurt

Boodschappen0,2 km
Grote supermarkt0,3 km
Cafetaria0,2 km
Restaurant0,2 km
Huisarts0,4 km
Ziekenhuis1,4 km
Kinderdagverblijf0,5 km
BSO0,5 km
Alle voorzieningen in Lemmer-Kom

Binnenkijken bij Prinsessekade 14 te Lemmer

Meer meldingen in deze omgeving

112 melding
Maandag 24-11-2025 om 13:47
IJme Willem van Dijkstraat, 8531RA Lemmer

112 melding
Vrijdag 21-11-2025 om 14:18
Industrieweg, 8531PA Lemmer

112 melding
Vrijdag 21-11-2025 om 14:18
Industrieweg, 8531PA Lemmer

112 melding
Vrijdag 21-11-2025 om 12:31
Stationsweg, 8531HH Lemmer

112 melding
Vrijdag 21-11-2025 om 11:51
Stationsweg, 8531HH Lemmer

112 melding
Dinsdag 18-11-2025 om 09:15
Ooievaarsnest, 8531HX Lemmer

112 melding
Maandag 17-11-2025 om 13:37
Emmakade, 8531DT Lemmer

112 melding
Maandag 17-11-2025 om 08:39
Ooievaarsnest, 8531HX Lemmer

Direct een e-mail ontvangen bij nieuwe meldingen in deze regio?

Meld je dan GRATIS aan voor de Oozo Alert service voor Lemmer-Kom

Instellen

Meer nieuws in Lemmer-Kom

Weten hoe eenvoudig het is om af te vallen? Zonder pillen en smeersels en zonder je in het zweet te werken!
Kijk op eenvoudig-afvallen.nl

© 2012 - 2025 OOZO.nl - info@oozo.nl - Gegevens verwijderen? | Disclaimer | Privacy statement