Woning Trintel 2 Lemmer

Trintel 2, 8531PR Lemmer

Ontvang updates voor Lemmer-Zijlroede

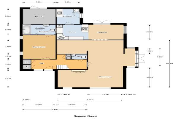
Het adres van deze woning uit 1975 is Trintel 2 te Lemmer. Het pand heeft een oppervlakte van 185m² en een perceeloppervlakte van 460m² en heeft 5 kamers kamers waarvan 4 slaapkamers. De geschatte waarde van deze woning is € 439.000.

Bekijk alle woningen in Lemmer-Zijlroede

Gegevens van Herenhuis, vrijstaande woning

Bouwjaar
1975
Geschatte waarde
€ 439.000
Oppervlakte
185 m2
Inhoud
688 m3
Aantal kamers
5 kamers
Slaapkamers
4
Badkamers
2 badkamers en 1 apart toilet
Soort bouw
Bestaande bouw
Eigendomssituatie
Volle eigendom
Ligging
In woonwijk
Tuin
Tuin rondom

Voorzieningen in de buurt

Boodschappen1,5 km
Grote supermarkt1,5 km
Cafetaria1,6 km
Restaurant0,6 km
Huisarts1,8 km
Ziekenhuis0,7 km
Kinderdagverblijf1,2 km
BSO1,2 km
Alle voorzieningen in Lemmer-Zijlroede

Binnenkijken bij Trintel 2 te Lemmer

Meer meldingen in deze omgeving

112 melding
Zondag 28-9-2025 om 14:06
Plattedijk, 8531PC Lemmer

Binnenkijken bij
Vrijdag 19-9-2025
Plattedijk 43, 8531PC Lemmer

112 melding
Dinsdag 19-8-2025 om 08:45
Plattedijk, 8531PB Lemmer

112 melding
Maandag 18-8-2025 om 07:15
Plattedijk, 8531PB Lemmer

112 melding
Zaterdag 16-8-2025 om 17:01
Plattedijk, 8531PB Lemmer

112 melding
Zaterdag 16-8-2025 om 16:22
Plattedijk, 8531PB Lemmer

112 melding
Woensdag 13-8-2025 om 11:34
Plattedijk, 8531PB Lemmer

112 melding
Woensdag 30-7-2025 om 07:59
Zijlroede, 8531PJ Lemmer

Direct een e-mail ontvangen bij nieuwe meldingen in deze regio?

Meld je dan GRATIS aan voor de Oozo Alert service voor Lemmer-Zijlroede

Instellen

Meer nieuws in Lemmer-Zijlroede

Weten hoe eenvoudig het is om af te vallen? Zonder pillen en smeersels en zonder je in het zweet te werken!
Kijk op eenvoudig-afvallen.nl

© 2012 - 2025 OOZO.nl - info@oozo.nl - Gegevens verwijderen? | Disclaimer | Privacy statement