Woning Achter de Kerken 53 Abcoude

Achter de Kerken 53, 1391LC Abcoude

Ontvang updates voor Abcoude-Noordoost

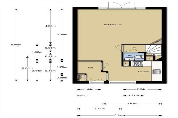
Het adres van deze woning uit 1979 is Achter de Kerken 53 te Abcoude. Het pand heeft een oppervlakte van 104m² en een perceeloppervlakte van 135m² en heeft 5 kamers kamers waarvan 4 slaapkamers. De geschatte waarde van deze woning is € 450.000.

Bekijk alle woningen in Abcoude-Noordoost

Gegevens van Eengezinswoning, tussenwoning

Bouwjaar
1979
Geschatte waarde
€ 450.000
Oppervlakte
104 m2
Inhoud
361 m3
Aantal kamers
5 kamers
Slaapkamers
4
Soort bouw
Bestaande bouw
Eigendomssituatie
Volle eigendom
Ligging
In woonwijk
Tuin
Achtertuin en voortuin
Achtertuin
66 m² (12m diep en 5,5m breed)

Voorzieningen in de buurt

Boodschappen0,5 km
Grote supermarkt0,4 km
Cafetaria0,6 km
Restaurant0,5 km
Huisarts0,6 km
Ziekenhuis3,5 km
Kinderdagverblijf0,4 km
BSO0,5 km
Alle voorzieningen in Abcoude-Noordoost

Binnenkijken bij Achter de Kerken 53 te Abcoude

Meer meldingen in deze omgeving

Binnenkijken bij
Donderdag 15-1-2026
't Markvelt 7, 1391BZ Abcoude

Binnenkijken bij
Zaterdag 10-1-2026
Amsterdamsestraatweg 44, 1391AB Abcoude

Nieuw bedrijf
Januari 2026
Dorpszicht 114, 1391LZ Abcoude

Nieuw bedrijf
Januari 2026
Theodorus de Leeuwlaan 3, 1391CB Abcoude

Nieuw bedrijf
Januari 2026
Theodorus de Leeuwlaan 3, 1391CB Abcoude

112 melding
Woensdag 31-12-2025 om 00:28
Broekzijdselaan, Abcoude

112 melding
Dinsdag 30-12-2025 om 20:02
Kerkstraat, Abcoude

112 melding
Dinsdag 30-12-2025 om 20:02
Kerkstraat, Abcoude

Direct een e-mail ontvangen bij nieuwe meldingen in deze regio?

Meld je dan GRATIS aan voor de Oozo Alert service voor Abcoude-Noordoost

Instellen

Meer nieuws in Abcoude-Noordoost

Weten hoe eenvoudig het is om af te vallen? Zonder pillen en smeersels en zonder je in het zweet te werken!
Kijk op eenvoudig-afvallen.nl

© 2012 - 2026 OOZO.nl - info@oozo.nl - Gegevens verwijderen? | Disclaimer | Privacy statement