Woning Stationsweg 14 Koekange

Stationsweg 14, 7958RX Koekange

Ontvang updates voor Koekange Noord

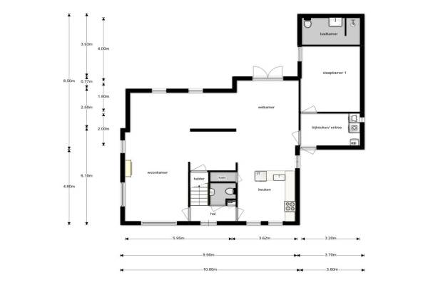
Het adres van deze woning uit 1961 is Stationsweg 14 te Koekange. Het pand heeft een oppervlakte van 141m² en een perceeloppervlakte van 1425m² en heeft 5 kamers kamers waarvan 3 slaapkamers. De geschatte waarde van deze woning is € 339.000.

Bekijk alle woningen in Koekange Noord

Gegevens van Eengezinswoning, vrijstaande woning

Bouwjaar
1961
Geschatte waarde
€ 339.000
Oppervlakte
141 m2
Inhoud
394 m3
Aantal kamers
5 kamers
Slaapkamers
3
Badkamers
2 badkamers
Soort bouw
Bestaande bouw
Eigendomssituatie
Volle eigendom
Ligging
Aan rustige weg, vrij uitzicht, beschutte ligging, open ligging, buiten bebouwde kom, in bosrijke omgeving en landelijk gelegen
Tuin
Achtertuin en voortuin
Achtertuin
450 m² (50m diep en 9m breed)

Voorzieningen in de buurt

Boodschappen0,6 km
Grote supermarkt1,3 km
Cafetaria5,9 km
Restaurant0,3 km
Huisarts1,6 km
Ziekenhuis7,9 km
Kinderdagverblijf1,6 km
BSO1,6 km
Alle voorzieningen in Koekange Noord

Binnenkijken bij Stationsweg 14 te Koekange

Meer meldingen in deze omgeving

Binnenkijken bij
Zondag 29-3-2026
Dorpsstraat 70A, 7958RR Koekange

Binnenkijken bij
Zaterdag 14-2-2026
Weerwilleweg 24, 7958RW Koekange

Nieuw bedrijf
Januari 2026
Prinsesseweg 50a, 7958RT Koekange

Nieuw bedrijf
December 2025
Dorpsstraat 64, 7958RR Koekange

Binnenkijken bij
Dinsdag 11-11-2025
Weerwilleweg 34, 7958RW Koekange

Onroerend goed
Vrijdag 19-9-2025
Dorpsstraat 78-a, 7958RR Koekange

Onroerend goed
Vrijdag 19-9-2025
Dorpsstraat 78, 7958RR Koekange

Nieuw bedrijf
Juli 2025
Stationsweg 7, 7958RX Koekange

Direct een e-mail ontvangen bij nieuwe meldingen in deze regio?

Meld je dan GRATIS aan voor de Oozo Alert service voor Koekange Noord

Instellen

Meer nieuws in Koekange Noord

Weten hoe eenvoudig het is om af te vallen? Zonder pillen en smeersels en zonder je in het zweet te werken!
Kijk op eenvoudig-afvallen.nl

© 2012 - 2026 OOZO.nl - info@oozo.nl - Gegevens verwijderen? | Disclaimer | Privacy statement