Woning Cellebroerstraat 21 Delft

Cellebroerstraat 21, 2611NA Delft

Ontvang updates voor Centrum-West

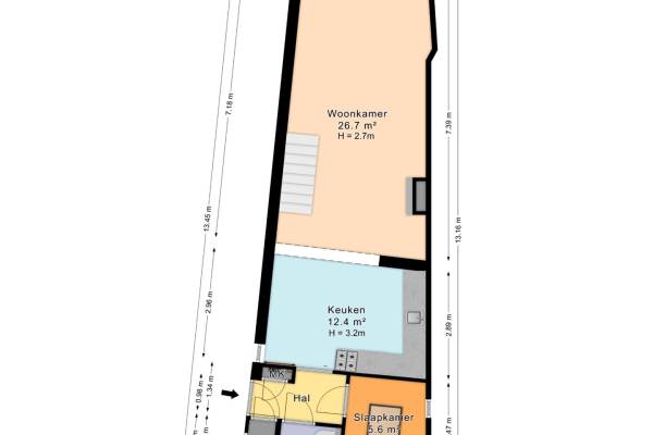
Het adres van deze woning uit 1875 is Cellebroerstraat 21 te Delft. Het pand heeft een oppervlakte van 64m² en een perceeloppervlakte van 56m² en heeft 3 kamers kamers waarvan 2 slaapkamers. De geschatte waarde van deze woning is € 375.000.

Bekijk alle woningen in Centrum-West

Gegevens van Eengezinswoning, eindwoning

Bouwjaar
1875
Geschatte waarde
€ 375.000
Oppervlakte
64 m2
Inhoud
260 m3
Aantal kamers
3 kamers
Slaapkamers
2
Badkamers
1 badkamer
Soort bouw
Bestaande bouw
Eigendomssituatie
Volle eigendom
Ligging
Aan rustige weg, in centrum en in woonwijk

Voorzieningen in de buurt

Boodschappen0,2 km
Grote supermarkt0,5 km
Cafetaria0,2 km
Restaurant0,1 km
Huisarts0,5 km
Ziekenhuis2,8 km
Kinderdagverblijf0,3 km
BSO0,3 km
Alle voorzieningen in Centrum-West

Binnenkijken bij Cellebroerstraat 21 te Delft

Meer meldingen in deze omgeving

112 melding
Vrijdag 14-11-2025 om 18:05
Phoenixstraat, 2611AL Delft

112 melding
Vrijdag 14-11-2025 om 18:04
Phoenixstraat, 2611AL Delft

112 melding
Vrijdag 14-11-2025 om 18:03
Phoenixstraat, Delft

Nieuw bedrijf
November 2025
Drie Akersstraat 11, 2611JR Delft

Nieuw bedrijf
November 2025
Oude Delft 197, 2611HD Delft

112 melding
Woensdag 12-11-2025 om 12:53
Phoenixstraat, Delft

112 melding
Woensdag 12-11-2025 om 10:33
Phoenixstraat, Delft

112 melding
Dinsdag 11-11-2025 om 21:58
Phoenixstraat, Delft

Direct een e-mail ontvangen bij nieuwe meldingen in deze regio?

Meld je dan GRATIS aan voor de Oozo Alert service voor Centrum-West

Instellen

Meer nieuws in Centrum-West

Weten hoe eenvoudig het is om af te vallen? Zonder pillen en smeersels en zonder je in het zweet te werken!
Kijk op eenvoudig-afvallen.nl

© 2012 - 2025 OOZO.nl - info@oozo.nl - Gegevens verwijderen? | Disclaimer | Privacy statement