Woning Visstraat 9 Delft

Visstraat 9, 2611JW Delft

Ontvang updates voor Centrum-West

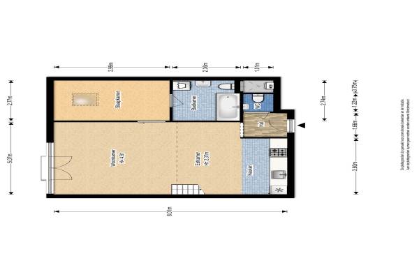
Het adres van deze woning uit 1777 is Visstraat 9 te Delft. Het pand heeft een oppervlakte van 62m² en heeft 3 kamers kamers waarvan 2 slaapkamers. De geschatte waarde van deze woning is € 295.000.

Bekijk alle woningen in Centrum-West

Gegevens van Portiekwoning (appartement)

Bouwjaar
1777
Geschatte waarde
€ 295.000
Oppervlakte
62 m2
Inhoud
240 m3
Aantal kamers
3 kamers
Slaapkamers
2
Badkamers
1 badkamer en 1 apart toilet
Soort bouw
Bestaande bouw
Ligging
In centrum

Voorzieningen in de buurt

Boodschappen0,2 km
Grote supermarkt0,5 km
Cafetaria0,2 km
Restaurant0,1 km
Huisarts0,5 km
Ziekenhuis2,8 km
Kinderdagverblijf0,3 km
BSO0,3 km
Alle voorzieningen in Centrum-West

Binnenkijken bij Visstraat 9 te Delft

Meer meldingen in deze omgeving

Nieuw bedrijf
December 2025
Voorstraat 46, 2611JR Delft

Nieuw bedrijf
December 2025
Voorstraat 46, 2611JR Delft

112 melding
Zondag 14-12-2025 om 01:10
Phoenixstraat, Delft

112 melding
Vrijdag 12-12-2025 om 21:03
Oude Kerkstraat, 2611HT Delft

Binnenkijken bij
Vrijdag 12-12-2025
Wateringsevest 23, 2611AW Delft

Nieuw bedrijf
December 2025
Wateringsevest 23, 2611AW Delft

112 melding
Donderdag 11-12-2025 om 17:16
Sint Agathaplein, 2611HR Delft

112 melding
Donderdag 11-12-2025 om 16:48
Sint Agathaplein, 2611HR Delft

Direct een e-mail ontvangen bij nieuwe meldingen in deze regio?

Meld je dan GRATIS aan voor de Oozo Alert service voor Centrum-West

Instellen

Meer nieuws in Centrum-West

Weten hoe eenvoudig het is om af te vallen? Zonder pillen en smeersels en zonder je in het zweet te werken!
Kijk op eenvoudig-afvallen.nl

© 2012 - 2025 OOZO.nl - info@oozo.nl - Gegevens verwijderen? | Disclaimer | Privacy statement