Woning Gerbrandylaan 42 Delft

Gerbrandylaan 42, 2625LR Delft

Ontvang updates voor Verzetstrijdersbuurt

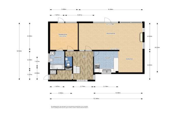
Het adres van deze woning uit 1972 is Gerbrandylaan 42 te Delft. Het pand heeft een oppervlakte van 164m² en een perceeloppervlakte van 662m² en heeft 6 kamers kamers waarvan 5 slaapkamers. De geschatte waarde van deze woning is € 650.000.

Bekijk alle woningen in Verzetstrijdersbuurt

Gegevens van Villa, vrijstaande woning

Bouwjaar
1972
Geschatte waarde
€ 650.000
Oppervlakte
164 m2
Inhoud
657 m3
Aantal kamers
6 kamers
Slaapkamers
5
Badkamers
2 badkamers en 1 apart toilet
Soort bouw
Bestaande bouw
Eigendomssituatie
Volle eigendom
Ligging
Aan water, aan rustige weg, in woonwijk en beschutte ligging
Tuin
Tuin rondom

Voorzieningen in de buurt

Boodschappen0,5 km
Grote supermarkt0,5 km
Cafetaria0,6 km
Restaurant0,8 km
Huisarts0,7 km
Ziekenhuis1,8 km
Kinderdagverblijf0,5 km
BSO0,7 km
Alle voorzieningen in Verzetstrijdersbuurt

Binnenkijken bij Gerbrandylaan 42 te Delft

Meer meldingen in deze omgeving

112 melding
Donderdag 13-11-2025 om 12:01
Van der Kamlaan, Delft

Binnenkijken bij
Dinsdag 11-11-2025
Wilhelminalaan 45, 2625LE Delft

112 melding
Maandag 10-11-2025 om 14:05
Schijflaan, 2625KG Delft

112 melding
Vrijdag 7-11-2025 om 21:49
Van Hasseltlaan, Delft

112 melding
Vrijdag 31-10-2025 om 14:05
Van der Veensingel, 2625KV Delft

112 melding
Donderdag 30-10-2025 om 07:27
Koetlaan, Delft

112 melding
Dinsdag 28-10-2025 om 09:53
Wilhelminalaan, Delft

112 melding
Dinsdag 28-10-2025 om 09:29
Wilhelminalaan, Delft

Direct een e-mail ontvangen bij nieuwe meldingen in deze regio?

Meld je dan GRATIS aan voor de Oozo Alert service voor Verzetstrijdersbuurt

Instellen

Meer nieuws in Verzetstrijdersbuurt

Weten hoe eenvoudig het is om af te vallen? Zonder pillen en smeersels en zonder je in het zweet te werken!
Kijk op eenvoudig-afvallen.nl

© 2012 - 2025 OOZO.nl - info@oozo.nl - Gegevens verwijderen? | Disclaimer | Privacy statement