Woning Heemskerkstraat 2 Delft

Heemskerkstraat 2, 2613AL Delft

Ontvang updates voor Agnetaparkbuurt

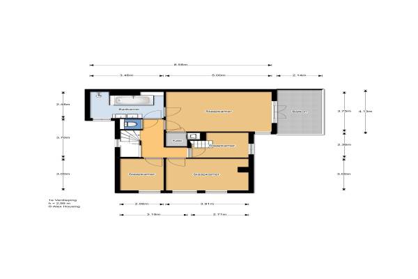
Het adres van deze woning uit 1913 is Heemskerkstraat 2 te Delft. Het pand heeft een oppervlakte van 152m² en een perceeloppervlakte van 234m² en heeft 6 kamers kamers waarvan 4 slaapkamers. De geschatte waarde van deze woning is € 729.000.

Bekijk alle woningen in Agnetaparkbuurt

Gegevens van Herenhuis, halfvrijstaande woning

Bouwjaar
1913
Geschatte waarde
€ 729.000
Oppervlakte
152 m2
Inhoud
645 m3
Aantal kamers
6 kamers
Slaapkamers
4
Badkamers
1 badkamer en 1 apart toilet
Soort bouw
Bestaande bouw
Eigendomssituatie
Volle eigendom
Ligging
In woonwijk
Tuin
Voortuin en zijtuin

Voorzieningen in de buurt

Boodschappen0,5 km
Grote supermarkt0,3 km
Cafetaria0,6 km
Restaurant0,3 km
Huisarts0,3 km
Ziekenhuis2,6 km
Kinderdagverblijf0,5 km
BSO0,5 km
Alle voorzieningen in Agnetaparkbuurt

Binnenkijken bij Heemskerkstraat 2 te Delft

Meer meldingen in deze omgeving

112 melding
Maandag 23-2-2026 om 17:13
Heemskerkstraat, Delft

Nieuw bedrijf
Februari 2026
Goeman Borgesiusstraat 3, 2613AM Delft

Binnenkijken bij
Zaterdag 14-2-2026
Robert Koumansplein 12, 2613ZP Delft

112 melding
Dinsdag 3-2-2026 om 12:01
Laan van Altena, Delft

112 melding
Dinsdag 3-2-2026 om 11:46
Laan van Altena, Delft

Binnenkijken bij
Dinsdag 27-1-2026
Knuttelstraat 42, 2613XX Delft

112 melding
Maandag 26-1-2026 om 17:42
Van der Haertstraat, Delft

112 melding
Maandag 26-1-2026 om 07:27
Laan van Altena, Delft

Direct een e-mail ontvangen bij nieuwe meldingen in deze regio?

Meld je dan GRATIS aan voor de Oozo Alert service voor Agnetaparkbuurt

Instellen

Meer nieuws in Agnetaparkbuurt

Weten hoe eenvoudig het is om af te vallen? Zonder pillen en smeersels en zonder je in het zweet te werken!
Kijk op eenvoudig-afvallen.nl

© 2012 - 2026 OOZO.nl - info@oozo.nl - Gegevens verwijderen? | Disclaimer | Privacy statement