Woning Lepelaarstraat 46 Delft

Lepelaarstraat 46, 2623NX Delft

Ontvang updates voor Vogelbuurt-West

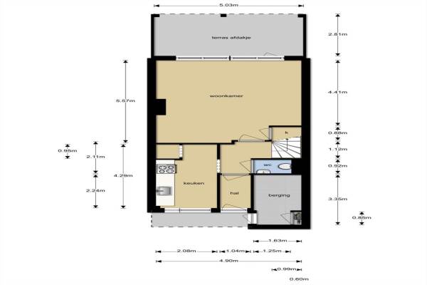
Het adres van deze woning uit 1979 is Lepelaarstraat 46 te Delft. Het pand heeft een oppervlakte van 94m² en een perceeloppervlakte van 121m² en heeft 4 kamers kamers waarvan 3 slaapkamers. De geschatte waarde van deze woning is € 269.500.

Bekijk alle woningen in Vogelbuurt-West

Gegevens van Eengezinswoning, tussenwoning

Bouwjaar
1979
Geschatte waarde
€ 269.500
Oppervlakte
94 m2
Inhoud
337 m3
Aantal kamers
4 kamers
Slaapkamers
3
Soort bouw
Bestaande bouw
Eigendomssituatie
Eigendom belast met erfpacht
Ligging
In woonwijk
Tuin
Achtertuin
Achtertuin
74 m² (13,5m diep en 5,5m breed)

Voorzieningen in de buurt

Boodschappen0,5 km
Grote supermarkt0,5 km
Cafetaria0,5 km
Restaurant0,5 km
Huisarts0,6 km
Ziekenhuis3,3 km
Kinderdagverblijf0,4 km
BSO0,3 km
Alle voorzieningen in Vogelbuurt-West

Binnenkijken bij Lepelaarstraat 46 te Delft

Meer meldingen in deze omgeving

112 melding
Zondag 16-11-2025 om 18:08
Kluutring, 2623NM Delft

Binnenkijken bij
Dinsdag 11-11-2025
Zwarte Sternhof 15, 2623MC Delft

Binnenkijken bij
Dinsdag 11-11-2025
Kiekendiefhof 3, 2623PB Delft

Binnenkijken bij
Dinsdag 11-11-2025
Pijlstaartpad 35, 2623MH Delft

112 melding
Dinsdag 11-11-2025 om 02:22
Talinghof, 2623NR Delft

112 melding
Woensdag 29-10-2025 om 18:13
Oeverloperpad, 2623LZ Delft

112 melding
Zondag 19-10-2025 om 03:33
Talinghof, 2623NR Delft

Nieuw bedrijf
Oktober 2025
Zaagbekhof 6, 2623MK Delft

Direct een e-mail ontvangen bij nieuwe meldingen in deze regio?

Meld je dan GRATIS aan voor de Oozo Alert service voor Vogelbuurt-West

Instellen

Meer nieuws in Vogelbuurt-West

Weten hoe eenvoudig het is om af te vallen? Zonder pillen en smeersels en zonder je in het zweet te werken!
Kijk op eenvoudig-afvallen.nl

© 2012 - 2025 OOZO.nl - info@oozo.nl - Gegevens verwijderen? | Disclaimer | Privacy statement