Woning Amazoneweg 26 Delft

Amazoneweg 26, 2622DS Delft

Ontvang updates voor Latijns Amerikabuurt

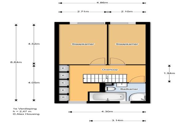
Het adres van deze woning uit 1993 is Amazoneweg 26 te Delft. Het pand heeft een oppervlakte van 118m² en een perceeloppervlakte van 106m² en heeft 4 kamers kamers waarvan 3 slaapkamers. De geschatte waarde van deze woning is € 299.000.

Bekijk alle woningen in Latijns Amerikabuurt

Gegevens van Eengezinswoning, tussenwoning

Bouwjaar
1993
Geschatte waarde
€ 299.000
Oppervlakte
118 m2
Inhoud
360 m3
Aantal kamers
4 kamers
Slaapkamers
3
Badkamers
1 badkamer en 1 apart toilet
Soort bouw
Bestaande bouw
Eigendomssituatie
Volle eigendom
Ligging
Aan rustige weg, in woonwijk en vrij uitzicht
Tuin
Achtertuin en voortuin
Achtertuin
52 m² (10,38m diep en 5m breed)

Voorzieningen in de buurt

Boodschappen0,5 km
Grote supermarkt0,5 km
Cafetaria0,5 km
Restaurant0,4 km
Huisarts0,4 km
Ziekenhuis2,5 km
Kinderdagverblijf0,3 km
BSO0,3 km
Alle voorzieningen in Latijns Amerikabuurt

Binnenkijken bij Amazoneweg 26 te Delft

Meer meldingen in deze omgeving

112 melding
Vrijdag 8-5-2026 om 16:48
Mexicohof, Delft

112 melding
Woensdag 6-5-2026 om 22:47
Latijns-Amerikalaan, Delft

112 melding
Woensdag 6-5-2026 om 12:24
Boliviastraat, Delft

Binnenkijken bij
Dinsdag 5-5-2026
Hélder Câmarastraat 27, 2622BH Delft

Nieuw bedrijf
Mei 2026
Latijns-Amerikalaan 111, 2622BB Delft

112 melding
Woensdag 22-4-2026 om 15:59
Caracasstraat, Delft

112 melding
Vrijdag 17-4-2026 om 09:12
Latijns-Amerikalaan, Delft

112 melding
Dinsdag 14-4-2026 om 03:19
Argentiniëstraat, Delft

Direct een e-mail ontvangen bij nieuwe meldingen in deze regio?

Meld je dan GRATIS aan voor de Oozo Alert service voor Latijns Amerikabuurt

Instellen

Meer nieuws in Latijns Amerikabuurt

Weten hoe eenvoudig het is om af te vallen? Zonder pillen en smeersels en zonder je in het zweet te werken!
Kijk op eenvoudig-afvallen.nl

© 2012 - 2026 OOZO.nl - info@oozo.nl - Gegevens verwijderen? | Disclaimer | Privacy statement