Woning Roland Holstlaan 855 Delft

Roland Holstlaan 855, 2624KD Delft

Ontvang updates voor Roland Holstbuurt

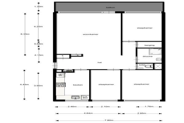
Het adres van deze woning uit 1968 is Roland Holstlaan 855 te Delft. Het pand heeft een oppervlakte van 100m² en heeft 4 kamers kamers waarvan 3 slaapkamers. De geschatte waarde van deze woning is € 178.500.

Bekijk alle woningen in Roland Holstbuurt

Gegevens van Portiekflat (appartement)

Bouwjaar
1968
Geschatte waarde
€ 178.500
Oppervlakte
100 m2
Inhoud
260 m3
Aantal kamers
4 kamers
Slaapkamers
3
Badkamers
1 badkamer en 1 apart toilet
Soort bouw
Bestaande bouw
Eigendomssituatie
Volle eigendom
Ligging
In woonwijk

Voorzieningen in de buurt

Boodschappen0,2 km
Grote supermarkt0,4 km
Cafetaria0,5 km
Restaurant0,5 km
Huisarts0,3 km
Ziekenhuis1,7 km
Kinderdagverblijf0,3 km
BSO0,3 km
Alle voorzieningen in Roland Holstbuurt

Binnenkijken bij Roland Holstlaan 855 te Delft

Meer meldingen in deze omgeving

Nieuw bedrijf
November 2025
Roland Holstlaan 1149, 2624KN Delft

Nieuw bedrijf
November 2025
A.M. de Jonglaan 7A, 2624LB Delft

112 melding
Dinsdag 11-11-2025 om 17:35
Jan Campertlaan, Delft

112 melding
Dinsdag 11-11-2025 om 17:18
Jan Campertlaan, Delft

Binnenkijken bij
Dinsdag 11-11-2025
J.J. Slauerhofflaan 95, 2624JW Delft

Nieuw bedrijf
November 2025
E. du Perronlaan 678, 2624NE Delft

112 melding
Maandag 3-11-2025 om 22:42
J.J. Slauerhofflaan, Delft

112 melding
Zaterdag 1-11-2025 om 01:38
A.M. de Jonglaan, 2624LB Delft

Direct een e-mail ontvangen bij nieuwe meldingen in deze regio?

Meld je dan GRATIS aan voor de Oozo Alert service voor Roland Holstbuurt

Instellen

Meer nieuws in Roland Holstbuurt

Weten hoe eenvoudig het is om af te vallen? Zonder pillen en smeersels en zonder je in het zweet te werken!
Kijk op eenvoudig-afvallen.nl

© 2012 - 2025 OOZO.nl - info@oozo.nl - Gegevens verwijderen? | Disclaimer | Privacy statement