Woning Roland Holstlaan 857 Delft

Roland Holstlaan 857, 2624KD Delft

Ontvang updates voor Roland Holstbuurt

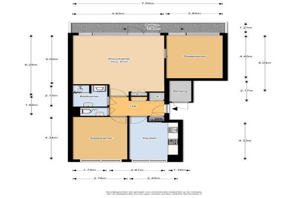
Het adres van deze woning uit 1968 is Roland Holstlaan 857 te Delft. Het pand heeft een oppervlakte van 74m² en heeft 3 kamers kamers waarvan 2 slaapkamers. De geschatte waarde van deze woning is € 169.500.

Bekijk alle woningen in Roland Holstbuurt

Gegevens van Portiekflat (appartement)

Bouwjaar
1968
Geschatte waarde
€ 169.500
Oppervlakte
74 m2
Inhoud
230 m3
Aantal kamers
3 kamers
Slaapkamers
2
Badkamers
1 badkamer en 1 apart toilet
Soort bouw
Bestaande bouw
Eigendomssituatie
Volle eigendom
Ligging
In woonwijk en vrij uitzicht

Voorzieningen in de buurt

Boodschappen0,2 km
Grote supermarkt0,4 km
Cafetaria0,5 km
Restaurant0,5 km
Huisarts0,3 km
Ziekenhuis1,7 km
Kinderdagverblijf0,3 km
BSO0,3 km
Alle voorzieningen in Roland Holstbuurt

Binnenkijken bij Roland Holstlaan 857 te Delft

Meer meldingen in deze omgeving

Nieuw bedrijf
Februari 2026
Guido Gezellelaan 36, 2624KW Delft

Binnenkijken bij
Maandag 16-2-2026
Roland Holstlaan 907, 2624KE Delft

112 melding
Zaterdag 14-2-2026 om 13:56
Roland Holstlaan, Delft

Binnenkijken bij
Vrijdag 13-2-2026
Jan Campertlaan 83, 2624PA Delft

112 melding
Donderdag 12-2-2026 om 09:01
Hendrik Marsmanlaan, Delft

112 melding
Donderdag 12-2-2026 om 02:35
E. du Perronlaan, Delft

112 melding
Woensdag 11-2-2026 om 09:31
J.J. Slauerhofflaan, Delft

112 melding
Woensdag 11-2-2026 om 09:13
J.J. Slauerhofflaan, Delft

Direct een e-mail ontvangen bij nieuwe meldingen in deze regio?

Meld je dan GRATIS aan voor de Oozo Alert service voor Roland Holstbuurt

Instellen

Meer nieuws in Roland Holstbuurt

Weten hoe eenvoudig het is om af te vallen? Zonder pillen en smeersels en zonder je in het zweet te werken!
Kijk op eenvoudig-afvallen.nl

© 2012 - 2026 OOZO.nl - info@oozo.nl - Gegevens verwijderen? | Disclaimer | Privacy statement