Woning Antoon Coolenlaan 13 Delft

Antoon Coolenlaan 13, 2624NV Delft

Ontvang updates voor Roland Holstbuurt

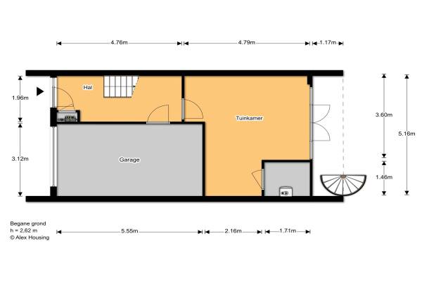
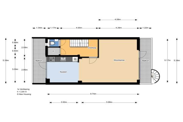
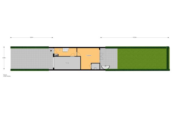
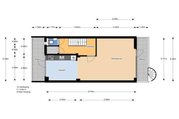
Het adres van deze woning uit 1969 is Antoon Coolenlaan 13 te Delft. Het pand heeft een oppervlakte van 173m² en een perceeloppervlakte van 183m² en heeft 7 kamers kamers waarvan 5 slaapkamers. De geschatte waarde van deze woning is € 435.000.

Bekijk alle woningen in Roland Holstbuurt

Gegevens van Herenhuis, tussenwoning (drive-in woning)

Bouwjaar
1969
Geschatte waarde
€ 435.000
Oppervlakte
173 m2
Inhoud
610 m3
Aantal kamers
7 kamers
Slaapkamers
5
Badkamers
1 badkamer en 1 apart toilet
Soort bouw
Bestaande bouw
Eigendomssituatie
Volle eigendom
Ligging
Aan rustige weg, in woonwijk en vrij uitzicht
Tuin
Achtertuin en voortuin
Achtertuin
78 m² (14,5m diep en 5,4m breed)

Voorzieningen in de buurt

Boodschappen0,2 km
Grote supermarkt0,4 km
Cafetaria0,5 km
Restaurant0,5 km
Huisarts0,3 km
Ziekenhuis1,7 km
Kinderdagverblijf0,3 km
BSO0,3 km
Alle voorzieningen in Roland Holstbuurt

Binnenkijken bij Antoon Coolenlaan 13 te Delft

Meer meldingen in deze omgeving

112 melding
Zaterdag 20-12-2025 om 03:58
Roland Holstlaan, Delft

Binnenkijken bij
Zaterdag 20-12-2025
Guido Gezellelaan 100, 2624LA Delft

112 melding
Donderdag 18-12-2025 om 09:26
Roland Holstlaan, Delft

112 melding
Donderdag 11-12-2025 om 22:05
E. du Perronlaan, Delft

Binnenkijken bij
Woensdag 10-12-2025
A.M. de Jonglaan 9C, 2624LB Delft

112 melding
Vrijdag 5-12-2025 om 14:17
Roland Holstlaan, Delft

Binnenkijken bij
Donderdag 4-12-2025
A.M. de Jonglaan 21, 2624LB Delft

112 melding
Woensdag 3-12-2025 om 02:28
E. du Perronlaan, Delft

Direct een e-mail ontvangen bij nieuwe meldingen in deze regio?

Meld je dan GRATIS aan voor de Oozo Alert service voor Roland Holstbuurt

Instellen

Meer nieuws in Roland Holstbuurt

Weten hoe eenvoudig het is om af te vallen? Zonder pillen en smeersels en zonder je in het zweet te werken!
Kijk op eenvoudig-afvallen.nl

© 2012 - 2025 OOZO.nl - info@oozo.nl - Gegevens verwijderen? | Disclaimer | Privacy statement