Woning Hendrik Tollensstraat 40 Delft

Hendrik Tollensstraat 40, 2624BH Delft

Ontvang updates voor Voorhof-Hoogbouw

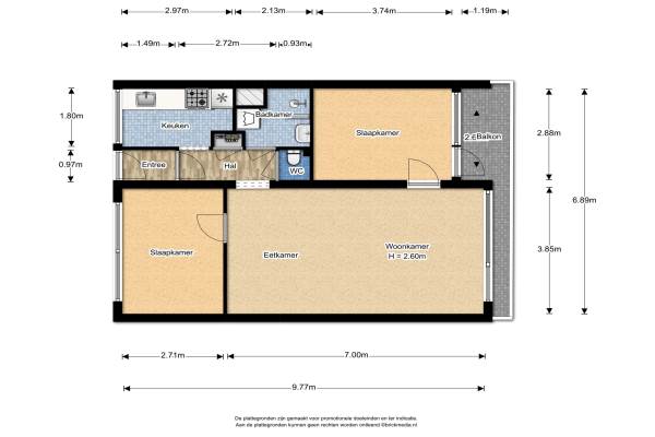
Het adres van deze woning uit 1966 is Hendrik Tollensstraat 40 te Delft. Het pand heeft een oppervlakte van 65m² en heeft 3 kamers kamers waarvan 2 slaapkamers. De geschatte waarde van deze woning is € 149.000.

Bekijk alle woningen in Voorhof-Hoogbouw

Gegevens van Galerijflat (appartement)

Bouwjaar
1966
Geschatte waarde
€ 149.000
Oppervlakte
65 m2
Inhoud
209 m3
Aantal kamers
3 kamers
Slaapkamers
2
Badkamers
1 badkamer en 1 apart toilet
Soort bouw
Bestaande bouw
Eigendomssituatie
Volle eigendom
Ligging
In woonwijk

Voorzieningen in de buurt

Boodschappen0,6 km
Grote supermarkt0,3 km
Cafetaria0,8 km
Restaurant0,7 km
Huisarts0,7 km
Ziekenhuis2,1 km
Kinderdagverblijf0,3 km
BSO0,3 km
Alle voorzieningen in Voorhof-Hoogbouw

Binnenkijken bij Hendrik Tollensstraat 40 te Delft

Meer meldingen in deze omgeving

Binnenkijken bij
Dinsdag 11-11-2025
Hendrik Tollensstraat 134, 2624BK Delft

112 melding
Zaterdag 8-11-2025 om 22:43
Minervaweg, 2624BZ Delft

112 melding
Zaterdag 1-11-2025 om 05:15
Bosboom-Toussaintplein, Delft

Nieuw bedrijf
Oktober 2025
Arthur van Schendelplein 140, 2624CW Delft

Binnenkijken bij
Woensdag 29-10-2025
Bosboom-Toussaintplein 236, 2624DP Delft

Nieuw bedrijf
Oktober 2025
Dirk Costerplein 192, 2624TZ Delft

Nieuw bedrijf
Oktober 2025
Herman Gorterhof 84, 2624XG Delft

112 melding
Dinsdag 28-10-2025 om 10:30
Bosboom-Toussaintplein, Delft

Direct een e-mail ontvangen bij nieuwe meldingen in deze regio?

Meld je dan GRATIS aan voor de Oozo Alert service voor Voorhof-Hoogbouw

Instellen

Meer nieuws in Voorhof-Hoogbouw

Weten hoe eenvoudig het is om af te vallen? Zonder pillen en smeersels en zonder je in het zweet te werken!
Kijk op eenvoudig-afvallen.nl

© 2012 - 2025 OOZO.nl - info@oozo.nl - Gegevens verwijderen? | Disclaimer | Privacy statement