Woning Dirk Costerplein 153 Delft

Dirk Costerplein 153, 2624TW Delft

Ontvang updates voor Voorhof-Hoogbouw

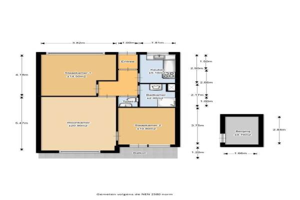
Het adres van deze woning uit 1965 is Dirk Costerplein 153 te Delft. Het pand heeft een oppervlakte van 64m² en heeft 3 kamers kamers waarvan 2 slaapkamers. De geschatte waarde van deze woning is € 110.500.

Bekijk alle woningen in Voorhof-Hoogbouw

Gegevens van Galerijflat (appartement)

Bouwjaar
1965
Geschatte waarde
€ 110.500
Oppervlakte
64 m2
Inhoud
190 m3
Aantal kamers
3 kamers
Slaapkamers
2
Badkamers
1 apart toilet
Soort bouw
Bestaande bouw

Voorzieningen in de buurt

Boodschappen0,6 km
Grote supermarkt0,3 km
Cafetaria0,8 km
Restaurant0,7 km
Huisarts0,7 km
Ziekenhuis2,1 km
Kinderdagverblijf0,3 km
BSO0,3 km
Alle voorzieningen in Voorhof-Hoogbouw

Binnenkijken bij Dirk Costerplein 153 te Delft

Meer meldingen in deze omgeving

Nieuw bedrijf
December 2025
Arthur van Schendelplein 137, 2624CV Delft

Binnenkijken bij
Dinsdag 2-12-2025
Herman Gorterhof 31, 2624XD Delft

112 melding
Zondag 30-11-2025 om 13:35
Bosboom-Toussaintplein, Delft

Binnenkijken bij
Vrijdag 28-11-2025
Bosboom-Toussaintplein 155, 2624DK Delft

Binnenkijken bij
Vrijdag 28-11-2025
Herman Gorterhof 43, 2624XD Delft

Nieuw bedrijf
November 2025
Willem Bilderdijkhof 103, 2624ZJ Delft

112 melding
Woensdag 26-11-2025 om 20:20
Dirk Costerplein, Delft

112 melding
Dinsdag 25-11-2025 om 06:45
Dirk Costerplein, Delft

Direct een e-mail ontvangen bij nieuwe meldingen in deze regio?

Meld je dan GRATIS aan voor de Oozo Alert service voor Voorhof-Hoogbouw

Instellen

Meer nieuws in Voorhof-Hoogbouw

Weten hoe eenvoudig het is om af te vallen? Zonder pillen en smeersels en zonder je in het zweet te werken!
Kijk op eenvoudig-afvallen.nl

© 2012 - 2025 OOZO.nl - info@oozo.nl - Gegevens verwijderen? | Disclaimer | Privacy statement