Woning Diamantpad 7 Delft

Diamantpad 7, 2628SC Delft

Ontvang updates voor Zeeheldenbuurt

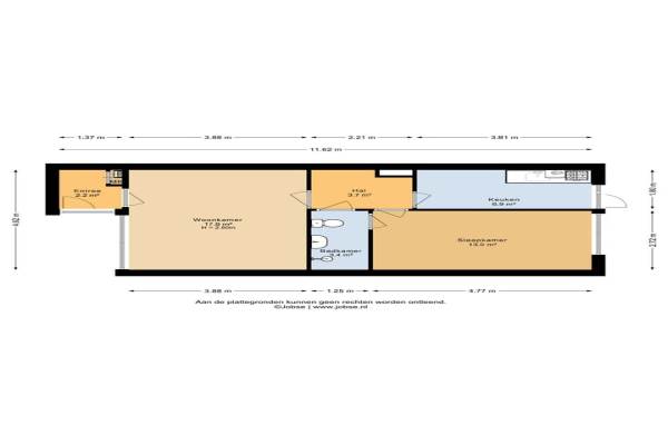
Het adres van deze woning uit 1978 is Diamantpad 7 te Delft. Het pand heeft een oppervlakte van 49m² en heeft 2 kamers kamers waarvan 1 slaapkamers. De geschatte waarde van deze woning is € 265.000.

Bekijk alle woningen in Zeeheldenbuurt

Gegevens van Benedenwoning (appartement)

Bouwjaar
1978
Geschatte waarde
€ 265.000
Oppervlakte
49 m2
Inhoud
127 m3
Aantal kamers
2 kamers
Slaapkamers
1
Badkamers
1 badkamer en 1 apart toilet
Soort bouw
Bestaande bouw
Eigendomssituatie
Volle eigendom
Ligging
In woonwijk en open ligging
Tuin
Voortuin

Voorzieningen in de buurt

Boodschappen0,8 km
Grote supermarkt0,8 km
Cafetaria0,3 km
Restaurant0,3 km
Huisarts0,7 km
Ziekenhuis2,7 km
Kinderdagverblijf0,2 km
BSO0,2 km
Alle voorzieningen in Zeeheldenbuurt

Binnenkijken bij Diamantpad 7 te Delft

Meer meldingen in deze omgeving

112 melding
Vrijdag 20-2-2026 om 13:45
Diamantpad, 2628SC Delft

112 melding
Dinsdag 17-2-2026 om 14:57
Van Speykstraat, 2628RG Delft

112 melding
Donderdag 12-2-2026 om 12:53
Van Speykstraat, 2628RG Delft

Nieuw bedrijf
Februari 2026
Julianalaan 87, 2628BD Delft

Binnenkijken bij
Zondag 1-2-2026
Maerten Trompstraat 18, 2628RE Delft

Faillissement
Woensdag 28-1-2026
Maerten Trompstraat 25, 2628RC Delft

112 melding
Maandag 26-1-2026 om 05:32
Van Speykstraat, 2628RG Delft

Binnenkijken bij
Zondag 25-1-2026
Cornelis Trompstraat 74, 2628RS Delft

Direct een e-mail ontvangen bij nieuwe meldingen in deze regio?

Meld je dan GRATIS aan voor de Oozo Alert service voor Zeeheldenbuurt

Instellen

Meer nieuws in Zeeheldenbuurt

Weten hoe eenvoudig het is om af te vallen? Zonder pillen en smeersels en zonder je in het zweet te werken!
Kijk op eenvoudig-afvallen.nl

© 2012 - 2026 OOZO.nl - info@oozo.nl - Gegevens verwijderen? | Disclaimer | Privacy statement