Woning R.W. van de Wintstraat 8 Huisduinen

R.W. van de Wintstraat 8, 1789BB Huisduinen

Ontvang updates voor Huisduinen

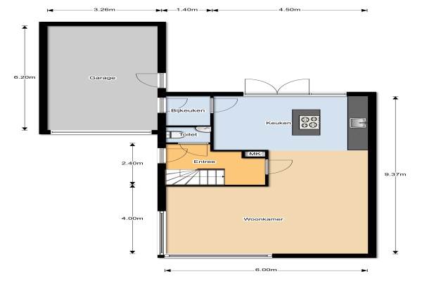
Het adres van deze woning uit 2017 is R.W. van de Wintstraat 8 te Huisduinen. Het pand heeft een oppervlakte van 146m² en een perceeloppervlakte van 342m² en heeft 5 kamers kamers waarvan 4 slaapkamers. De geschatte waarde van deze woning is € 399.500.

Bekijk alle woningen in Huisduinen

Gegevens van Eengezinswoning, geschakelde 2-onder-1-kapwoning

Bouwjaar
2017
Geschatte waarde
€ 399.500
Oppervlakte
146 m2
Inhoud
493 m3
Aantal kamers
5 kamers
Slaapkamers
4
Badkamers
2 aparte toiletten
Soort bouw
Bestaande bouw
Eigendomssituatie
Volle eigendom
Ligging
In woonwijk
Tuin
Achtertuin en voortuin
Achtertuin
135 m² (15m diep en 9m breed)

Voorzieningen in de buurt

Boodschappen1,8 km
Grote supermarkt1,9 km
Cafetaria1,6 km
Restaurant0,5 km
Huisarts1,9 km
Ziekenhuis1,4 km
Kinderdagverblijf1,7 km
BSO1,7 km
Alle voorzieningen in Huisduinen

Binnenkijken bij R.W. van de Wintstraat 8 te Huisduinen

Meer meldingen in deze omgeving

112 melding
Vrijdag 19-12-2025 om 13:05
Badhuisstraat & Tuintjesweg, 1789 Huisduinen

112 melding
Donderdag 18-12-2025 om 14:15
Duinweg, Huisduinen

112 melding
Dinsdag 16-12-2025 om 20:47
Badhuisstraat, 1789AL Huisduinen

112 melding
Dinsdag 16-12-2025 om 08:54
Grafelijkheidsweg, 1789AV Huisduinen

112 melding
Maandag 15-12-2025 om 09:06
Duinweg, Huisduinen

112 melding
Maandag 15-12-2025 om 08:11
Badhuisstraat, 1789AL Huisduinen

112 melding
Zondag 14-12-2025 om 08:11
Kijkduinlaan, 1789AE Huisduinen

112 melding
Zondag 14-12-2025 om 08:11
Kijkduinlaan, 1789AE Huisduinen

Direct een e-mail ontvangen bij nieuwe meldingen in deze regio?

Meld je dan GRATIS aan voor de Oozo Alert service voor Huisduinen

Instellen

Meer nieuws in Huisduinen

Weten hoe eenvoudig het is om af te vallen? Zonder pillen en smeersels en zonder je in het zweet te werken!
Kijk op eenvoudig-afvallen.nl

© 2012 - 2025 OOZO.nl - info@oozo.nl - Gegevens verwijderen? | Disclaimer | Privacy statement