Woning Smedenstraat 106 Deventer

Smedenstraat 106, 7411RJ Deventer

Ontvang updates voor Centrum

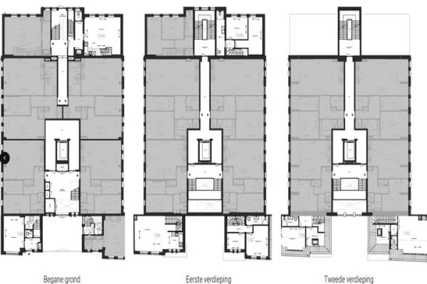
Het adres van deze woning uit 1932 is Smedenstraat 106 te Deventer. Het pand heeft een oppervlakte van 95m² en heeft 3 kamers kamers waarvan 2 slaapkamers. De geschatte waarde van deze woning is € 485.000.

Bekijk alle woningen in Centrum

Gegevens van Dubbel benedenhuis (appartement)

Bouwjaar
1932
Geschatte waarde
€ 485.000
Oppervlakte
95 m2
Inhoud
245 m3
Aantal kamers
3 kamers
Slaapkamers
2
Badkamers
1 badkamer
Soort bouw
Nieuwbouw
Ligging
Aan rustige weg en in centrum

Voorzieningen in de buurt

Boodschappen0,1 km
Grote supermarkt0,3 km
Cafetaria0,1 km
Restaurant0,1 km
Huisarts0,7 km
Ziekenhuis3,1 km
Kinderdagverblijf0,3 km
BSO0,3 km
Alle voorzieningen in Centrum

Binnenkijken bij Smedenstraat 106 te Deventer

Meer meldingen in deze omgeving

Binnenkijken bij
Donderdag 26-3-2026
Polstraat 73F6, 7411KX Deventer

Faillissement
Woensdag 25-3-2026
Brink 18, 7411BR Deventer

112 melding
Woensdag 25-3-2026 om 12:41
Korte Bisschopstraat, Deventer

112 melding
Woensdag 25-3-2026 om 12:41
Korte Bisschopstraat, Deventer

Nieuw bedrijf
Maart 2026
Kleine Overstraat 15a, 7411JH Deventer

Onroerend goed
Donderdag 19-3-2026
Lange Bisschopstraat 26, 7411KL Deventer

Faillissement
Donderdag 19-3-2026
Brink 18, 7411BR Deventer

Binnenkijken bij
Dinsdag 17-3-2026
Stromarkt 8, 7411PJ Deventer

Direct een e-mail ontvangen bij nieuwe meldingen in deze regio?

Meld je dan GRATIS aan voor de Oozo Alert service voor Centrum

Instellen

Meer nieuws in Centrum

Weten hoe eenvoudig het is om af te vallen? Zonder pillen en smeersels en zonder je in het zweet te werken!
Kijk op eenvoudig-afvallen.nl

© 2012 - 2026 OOZO.nl - info@oozo.nl - Gegevens verwijderen? | Disclaimer | Privacy statement