Woning Pothoofd 343 Deventer

Pothoofd 343, 7411ZJ Deventer

Ontvang updates voor Knutteldorp

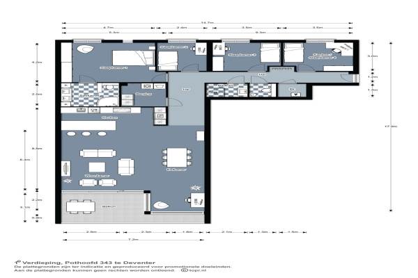
Het adres van deze woning uit 2004 is Pothoofd 343 te Deventer. Het pand heeft een oppervlakte van 160m² en heeft 5 kamers kamers waarvan 4 slaapkamers. De geschatte waarde van deze woning is € 669.000.

Bekijk alle woningen in Knutteldorp

Gegevens van Portiekflat (appartement)

Bouwjaar
2004
Geschatte waarde
€ 669.000
Oppervlakte
160 m2
Inhoud
533 m3
Aantal kamers
5 kamers
Slaapkamers
4
Badkamers
2 badkamers en 1 apart toilet
Soort bouw
Bestaande bouw
Eigendomssituatie
Volle eigendom
Ligging
Aan drukke weg, in centrum, in woonwijk en vrij uitzicht

Voorzieningen in de buurt

Boodschappen0,5 km
Grote supermarkt0,9 km
Cafetaria0,5 km
Restaurant0,4 km
Huisarts1,8 km
Ziekenhuis3,1 km
Kinderdagverblijf0,3 km
BSO1,3 km
Alle voorzieningen in Knutteldorp

Binnenkijken bij Pothoofd 343 te Deventer

Meer meldingen in deze omgeving

Nieuw bedrijf
Januari 2026
Bellendonkplein 80, 7411ZM Deventer

112 melding
Woensdag 31-12-2025 om 23:30
Grootburgerstraat, Deventer

Binnenkijken bij
Zondag 14-12-2025
Zuiderzeestraat 95, 7411MC Deventer

Binnenkijken bij
Zondag 14-12-2025
Zuiderzeestraat 71, 7411MC Deventer

Binnenkijken bij
Zondag 7-12-2025
Zuiderzeestraat 57, 7411MC Deventer

Binnenkijken bij
Vrijdag 28-11-2025
Zuiderzeestraat 69, 7411MC Deventer

Nieuw bedrijf
November 2025
Bergweideplein 6, 7411BE Deventer

112 melding
Donderdag 27-11-2025 om 16:07
G.J. Leonard Ankersmitlaan, Deventer

Direct een e-mail ontvangen bij nieuwe meldingen in deze regio?

Meld je dan GRATIS aan voor de Oozo Alert service voor Knutteldorp

Instellen

Meer nieuws in Knutteldorp

Weten hoe eenvoudig het is om af te vallen? Zonder pillen en smeersels en zonder je in het zweet te werken!
Kijk op eenvoudig-afvallen.nl

© 2012 - 2026 OOZO.nl - info@oozo.nl - Gegevens verwijderen? | Disclaimer | Privacy statement