Woning Sluisstraat 9 Deventer

Sluisstraat 9, 7411EE Deventer

Ontvang updates voor Raambuurt

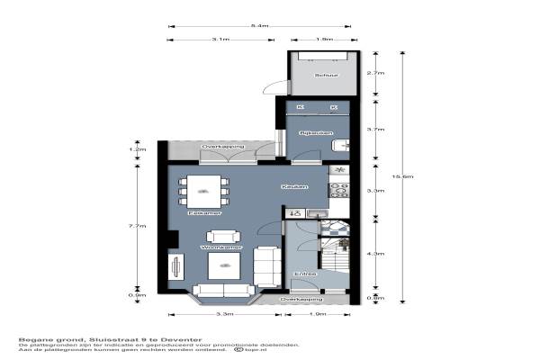
Het adres van deze woning uit 1935 is Sluisstraat 9 te Deventer. Het pand heeft een oppervlakte van 119m² en een perceeloppervlakte van 136m² en heeft 6 kamers kamers waarvan 4 slaapkamers. De geschatte waarde van deze woning is € 325.000.

Bekijk alle woningen in Raambuurt

Gegevens van Eengezinswoning, tussenwoning

Bouwjaar
1935
Geschatte waarde
€ 325.000
Oppervlakte
119 m2
Inhoud
468 m3
Aantal kamers
6 kamers
Slaapkamers
4
Badkamers
1 badkamer en 1 apart toilet
Soort bouw
Bestaande bouw
Eigendomssituatie
Volle eigendom
Ligging
Aan rustige weg, in centrum, in woonwijk en vrij uitzicht
Tuin
Achtertuin en voortuin
Achtertuin
73 m² (13m diep en 5,6m breed)

Voorzieningen in de buurt

Boodschappen0,4 km
Grote supermarkt0,5 km
Cafetaria0,4 km
Restaurant0,2 km
Huisarts1,4 km
Ziekenhuis2,9 km
Kinderdagverblijf0,5 km
BSO0,9 km
Alle voorzieningen in Raambuurt

Binnenkijken bij Sluisstraat 9 te Deventer

Meer meldingen in deze omgeving

Binnenkijken bij
Vrijdag 10-4-2026
Bergpoortstraat 151, 7411CV Deventer

Nieuw bedrijf
April 2026
Raamstraat 62, 7411CW Deventer

Binnenkijken bij
Dinsdag 24-3-2026
Raamstraat 72, 7411CW Deventer

Binnenkijken bij
Zondag 22-3-2026
Bergpoortstraat 13, 7411CL Deventer

Binnenkijken bij
Zaterdag 28-2-2026
Bergpoortstraat 109, 7411CV Deventer

Nieuw bedrijf
Februari 2026
Bergpoortstraat 48, 7411CM Deventer

Nieuw bedrijf
Februari 2026
Bergpoortstraat 48, 7411CM Deventer

Binnenkijken bij
Zondag 1-2-2026
Maalderijstraat 18, 7411CK Deventer

Direct een e-mail ontvangen bij nieuwe meldingen in deze regio?

Meld je dan GRATIS aan voor de Oozo Alert service voor Raambuurt

Instellen

Meer nieuws in Raambuurt

Weten hoe eenvoudig het is om af te vallen? Zonder pillen en smeersels en zonder je in het zweet te werken!
Kijk op eenvoudig-afvallen.nl

© 2012 - 2026 OOZO.nl - info@oozo.nl - Gegevens verwijderen? | Disclaimer | Privacy statement