Woning Geniestraat 14 Schalkhaar

Geniestraat 14, 7433MH Schalkhaar

Ontvang updates voor Dorp Schalkhaar

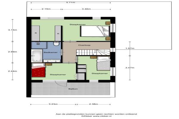
Het adres van deze woning uit 2004 is Geniestraat 14 te Schalkhaar. Het pand heeft een oppervlakte van 180m² en een perceeloppervlakte van 398m² en heeft 6 kamers kamers waarvan 4 slaapkamers. De geschatte waarde van deze woning is € 445.000.

Bekijk alle woningen in Dorp Schalkhaar

Gegevens van Herenhuis, 2-onder-1-kapwoning

Bouwjaar
2004
Geschatte waarde
€ 445.000
Oppervlakte
180 m2
Inhoud
500 m3
Aantal kamers
6 kamers
Slaapkamers
4
Badkamers
1 apart toilet
Soort bouw
Bestaande bouw
Eigendomssituatie
Volle eigendom
Ligging
Aan rustige weg en in woonwijk
Tuin
Achtertuin en voortuin
Achtertuin
167 m² (14,5m diep en 11,5m breed)

Voorzieningen in de buurt

Boodschappen0,6 km
Grote supermarkt0,7 km
Cafetaria0,8 km
Restaurant0,7 km
Huisarts0,8 km
Ziekenhuis1,8 km
Kinderdagverblijf0,6 km
BSO0,5 km
Alle voorzieningen in Dorp Schalkhaar

Binnenkijken bij Geniestraat 14 te Schalkhaar

Meer meldingen in deze omgeving

112 melding
Dinsdag 11-11-2025 om 19:25
Koningin Wilhelminalaan, Schalkhaar

112 melding
Dinsdag 11-11-2025 om 19:25
Koningin Wilhelminalaan, Schalkhaar

Nieuw bedrijf
November 2025
Prinses Ireneweg 20, 7433DE Schalkhaar

112 melding
Donderdag 6-11-2025 om 16:47
Rozebotteltuin, 7433CW Schalkhaar

112 melding
Donderdag 6-11-2025 om 15:45
Rozebotteltuin, 7433CW Schalkhaar

112 melding
Donderdag 6-11-2025 om 15:43
Rozebotteltuin, 7433CW Schalkhaar

112 melding
Donderdag 6-11-2025 om 15:43
Rozebotteltuin, 7433CW Schalkhaar

Nieuw bedrijf
Oktober 2025
Fokkingshof 4, 7433EP Schalkhaar

Direct een e-mail ontvangen bij nieuwe meldingen in deze regio?

Meld je dan GRATIS aan voor de Oozo Alert service voor Dorp Schalkhaar

Instellen

Meer nieuws in Dorp Schalkhaar

Weten hoe eenvoudig het is om af te vallen? Zonder pillen en smeersels en zonder je in het zweet te werken!
Kijk op eenvoudig-afvallen.nl

© 2012 - 2025 OOZO.nl - info@oozo.nl - Gegevens verwijderen? | Disclaimer | Privacy statement