Woning 2e Pauwenlandstraat 26 Deventer

2e Pauwenlandstraat 26, 7413ZC Deventer

Ontvang updates voor Oosterstraat

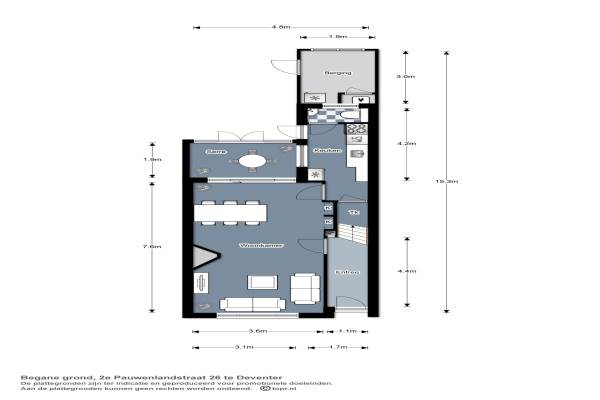
Het adres van deze woning uit 1925 is 2e Pauwenlandstraat 26 te Deventer. Het pand heeft een oppervlakte van 108m² en een perceeloppervlakte van 101m² en heeft 6 kamers kamers waarvan 4 slaapkamers. De geschatte waarde van deze woning is € 279.000.

Bekijk alle woningen in Oosterstraat

Gegevens van Eengezinswoning, tussenwoning

Bouwjaar
1925
Geschatte waarde
€ 279.000
Oppervlakte
108 m2
Inhoud
386 m3
Aantal kamers
6 kamers
Slaapkamers
4
Badkamers
1 badkamer en 1 apart toilet
Soort bouw
Bestaande bouw
Eigendomssituatie
Volle eigendom
Ligging
Aan rustige weg en in woonwijk
Tuin
Achtertuin
Achtertuin
42 m² (8,75m diep en 4,8m breed)

Voorzieningen in de buurt

Boodschappen0,3 km
Grote supermarkt0,3 km
Cafetaria0,2 km
Restaurant0,3 km
Huisarts0,8 km
Ziekenhuis2,4 km
Kinderdagverblijf0,2 km
BSO0,3 km
Alle voorzieningen in Oosterstraat

Binnenkijken bij 2e Pauwenlandstraat 26 te Deventer

Meer meldingen in deze omgeving

Nieuw bedrijf
Februari 2026
Diepenveenseweg 221, 7413AP Deventer

Nieuw bedrijf
Februari 2026
Brinkgreverweg 27, 7413AA Deventer

Nieuw bedrijf
Februari 2026
Brinkgreverweg 27, 7413AA Deventer

Binnenkijken bij
Donderdag 5-2-2026
Nieuwe Rij 27, 7413ZX Deventer

Binnenkijken bij
Donderdag 5-2-2026
2e Kruisstraat 42, 7413VH Deventer

Nieuw bedrijf
Februari 2026
Smyrnastraat 6, 7413BB Deventer

Nieuw bedrijf
Februari 2026
2e Kruisstraat 28, 7413VH Deventer

112 melding
Donderdag 22-1-2026 om 16:40
Oosterstraat

Direct een e-mail ontvangen bij nieuwe meldingen in deze regio?

Meld je dan GRATIS aan voor de Oozo Alert service voor Oosterstraat

Instellen

Meer nieuws in Oosterstraat

Weten hoe eenvoudig het is om af te vallen? Zonder pillen en smeersels en zonder je in het zweet te werken!
Kijk op eenvoudig-afvallen.nl

© 2012 - 2026 OOZO.nl - info@oozo.nl - Gegevens verwijderen? | Disclaimer | Privacy statement