Woning Jan Bertsstraat 7 Diemen

Jan Bertsstraat 7, 1111AN Diemen

Ontvang updates voor Centrum-West

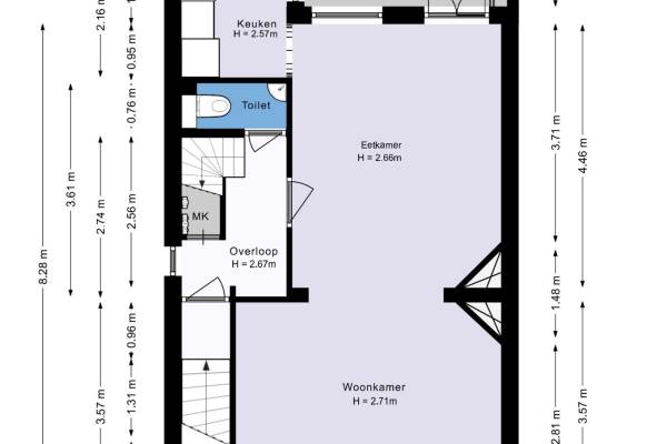
Het adres van deze woning uit 1950 is Jan Bertsstraat 7 te Diemen. Het pand heeft een oppervlakte van 90m² en heeft 4 kamers kamers waarvan 3 slaapkamers. De geschatte waarde van deze woning is € 495.000.

Bekijk alle woningen in Centrum-West

Gegevens van Maisonnette (appartement)

Bouwjaar
1950
Geschatte waarde
€ 495.000
Oppervlakte
90 m2
Inhoud
346 m3
Aantal kamers
4 kamers
Slaapkamers
3
Badkamers
1 badkamer en 1 apart toilet
Soort bouw
Bestaande bouw
Eigendomssituatie
Volle eigendom
Ligging
Aan rustige weg, in centrum en in woonwijk

Voorzieningen in de buurt

Binnenkijken bij Jan Bertsstraat 7 te Diemen

Meer meldingen in deze omgeving

Nieuw bedrijf
December 2025
Arent Krijtsstraat 45II, 1111AH Diemen

112 melding
Maandag 8-12-2025 om 23:08
Paulus Emtinckweg, Diemen

112 melding
Woensdag 3-12-2025 om 18:34
Paulus Emtinckweg, Diemen

112 melding
Dinsdag 2-12-2025 om 07:49
Arent Krijtsstraat, Diemen

Nieuw bedrijf
December 2025
Arent Krijtsstraat 1R, 1111AG Diemen

Nieuw bedrijf
December 2025
Wilhelminaplantsoen 33, 1111CJ Diemen

112 melding
Zaterdag 29-11-2025 om 07:05
Gerardt Burghoutweg, Diemen

Nieuw bedrijf
November 2025
Johan van Soesdijkstraat 28I, 1111BD Diemen

Direct een e-mail ontvangen bij nieuwe meldingen in deze regio?

Meld je dan GRATIS aan voor de Oozo Alert service voor Centrum-West

Instellen

Meer nieuws in Centrum-West

Weten hoe eenvoudig het is om af te vallen? Zonder pillen en smeersels en zonder je in het zweet te werken!
Kijk op eenvoudig-afvallen.nl

© 2012 - 2025 OOZO.nl - info@oozo.nl - Gegevens verwijderen? | Disclaimer | Privacy statement