Woning Julianaplantsoen 282 Diemen

Julianaplantsoen 282, 1111XZ Diemen

Ontvang updates voor Ruimzicht-Oost

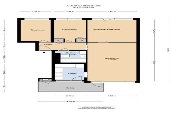
Het adres van deze woning uit 1961 is Julianaplantsoen 282 te Diemen. Het pand heeft een oppervlakte van 67m² en heeft 4 kamers kamers waarvan 3 slaapkamers. De geschatte waarde van deze woning is € 345.000.

Bekijk alle woningen in Ruimzicht-Oost

Gegevens van Woon-/winkelpand

Bouwjaar
1961
Geschatte waarde
€ 345.000
Oppervlakte
67 m2
Inhoud
215 m3
Aantal kamers
4 kamers
Slaapkamers
3
Badkamers
1 badkamer
Soort bouw
Bestaande bouw
Eigendomssituatie
Gemeentelijke erfpacht (einddatum erfpacht: 01-07-2036)
Ligging
In centrum, in woonwijk en vrij uitzicht
Tuin
Balkon aanwezig

Voorzieningen in de buurt

Binnenkijken bij Julianaplantsoen 282 te Diemen

Meer meldingen in deze omgeving

112 melding
Zaterdag 15-11-2025 om 09:39
Henry Dunantlaan, Diemen

112 melding
Zaterdag 15-11-2025 om 01:46
Rode Kruislaan, 1111XA Diemen

Binnenkijken bij
Zaterdag 15-11-2025
Julianaplantsoen 153, 1111XK Diemen

Nieuw bedrijf
November 2025
Ouddiemerlaan 112F, 1111HL Diemen

112 melding
Donderdag 13-11-2025 om 14:08
D.J. den Hartoglaan, Diemen

112 melding
Dinsdag 11-11-2025 om 16:11
D.J. den Hartoglaan, Diemen

112 melding
Dinsdag 11-11-2025 om 12:41
Rode Kruislaan, 1111XA Diemen

Nieuw bedrijf
November 2025
Julianaplantsoen 106, 1111XT Diemen

Direct een e-mail ontvangen bij nieuwe meldingen in deze regio?

Meld je dan GRATIS aan voor de Oozo Alert service voor Ruimzicht-Oost

Instellen

Meer nieuws in Ruimzicht-Oost

Weten hoe eenvoudig het is om af te vallen? Zonder pillen en smeersels en zonder je in het zweet te werken!
Kijk op eenvoudig-afvallen.nl

© 2012 - 2025 OOZO.nl - info@oozo.nl - Gegevens verwijderen? | Disclaimer | Privacy statement