Woning Tobias Asserlaan 294 Diemen

Tobias Asserlaan 294, 1111JW Diemen

Ontvang updates voor Ruimzicht-West

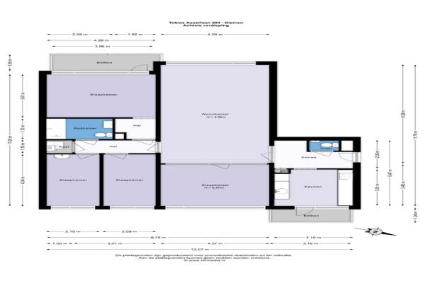
Het adres van deze woning uit 1975 is Tobias Asserlaan 294 te Diemen. Het pand heeft een oppervlakte van 117m² en heeft 5 kamers kamers waarvan 4 slaapkamers. De geschatte waarde van deze woning is € 450.000.

Bekijk alle woningen in Ruimzicht-West

Gegevens van Portiekwoning (appartement)

Bouwjaar
1975
Geschatte waarde
€ 450.000
Oppervlakte
117 m2
Inhoud
370 m3
Aantal kamers
5 kamers
Slaapkamers
4
Badkamers
1 badkamer en 1 apart toilet
Soort bouw
Bestaande bouw
Eigendomssituatie
Volle eigendom
Ligging
In centrum, in woonwijk en vrij uitzicht

Voorzieningen in de buurt

Binnenkijken bij Tobias Asserlaan 294 te Diemen

Meer meldingen in deze omgeving

112 melding
Donderdag 28-5-2026 om 17:26
Martin Luther Kinglaan, Diemen

112 melding
Zondag 24-5-2026 om 10:01
Martin Luther Kinglaan, Diemen

112 melding
Vrijdag 22-5-2026 om 11:23
Van Markenplantsoen, Diemen

Nieuw bedrijf
Mei 2026
Tobias Asserlaan 368, 1111KA Diemen

112 melding
Dinsdag 19-5-2026 om 04:26
Albert Loethoelistraat, Diemen

112 melding
Donderdag 14-5-2026 om 16:48
Diemerplein, 1111JD Diemen

Nieuw bedrijf
Mei 2026
Gustave Stresemannstraat 38, 1111KL Diemen

112 melding
Woensdag 13-5-2026 om 01:16
Tobias Asserlaan, Diemen

Direct een e-mail ontvangen bij nieuwe meldingen in deze regio?

Meld je dan GRATIS aan voor de Oozo Alert service voor Ruimzicht-West

Instellen

Meer nieuws in Ruimzicht-West

Weten hoe eenvoudig het is om af te vallen? Zonder pillen en smeersels en zonder je in het zweet te werken!
Kijk op eenvoudig-afvallen.nl

© 2012 - 2026 OOZO.nl - info@oozo.nl - Gegevens verwijderen? | Disclaimer | Privacy statement