Woning Tobias Asserlaan 421 Diemen

Tobias Asserlaan 421, 1111KD Diemen

Ontvang updates voor Ruimzicht-West

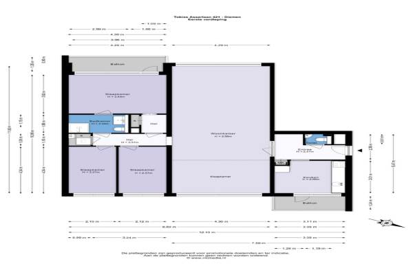
Het adres van deze woning uit 1975 is Tobias Asserlaan 421 te Diemen. Het pand heeft een oppervlakte van 118m² en heeft 5 kamers kamers waarvan 4 slaapkamers. De geschatte waarde van deze woning is € 495.000.

Bekijk alle woningen in Ruimzicht-West

Gegevens van Portiekflat (appartement)

Bouwjaar
1975
Geschatte waarde
€ 495.000
Oppervlakte
118 m2
Inhoud
367 m3
Aantal kamers
5 kamers
Slaapkamers
4
Badkamers
1 badkamer en 1 apart toilet
Soort bouw
Bestaande bouw
Eigendomssituatie
Volle eigendom
Ligging
Aan park, in centrum, in woonwijk en open ligging

Voorzieningen in de buurt

Binnenkijken bij Tobias Asserlaan 421 te Diemen

Meer meldingen in deze omgeving

112 melding
Woensdag 1-4-2026 om 13:38
Albert Loethoelistraat, Diemen

Binnenkijken bij
Woensdag 1-4-2026
Ouddiemerlaan 159, 1111GX Diemen

112 melding
Maandag 30-3-2026 om 10:19
Tobias Asserlaan, Diemen

112 melding
Zondag 29-3-2026 om 07:05
Albert Loethoelistraat, Diemen

112 melding
Woensdag 25-3-2026 om 19:16
Tobias Asserlaan, Diemen

112 melding
Woensdag 25-3-2026 om 12:22
Van Markenplantsoen, Diemen

Binnenkijken bij
Woensdag 25-3-2026
Martin Luther Kinglaan 112, 1111LK Diemen

Nieuw bedrijf
Maart 2026
Alfred Nobelstraat 63, 1111KN Diemen

Direct een e-mail ontvangen bij nieuwe meldingen in deze regio?

Meld je dan GRATIS aan voor de Oozo Alert service voor Ruimzicht-West

Instellen

Meer nieuws in Ruimzicht-West

Weten hoe eenvoudig het is om af te vallen? Zonder pillen en smeersels en zonder je in het zweet te werken!
Kijk op eenvoudig-afvallen.nl

© 2012 - 2026 OOZO.nl - info@oozo.nl - Gegevens verwijderen? | Disclaimer | Privacy statement