Woning Heivlinderweg 11 Diemen

Heivlinderweg 11, 1113KR Diemen

Ontvang updates voor Vlindertuin en Scheepskwartier-Zuid

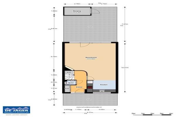
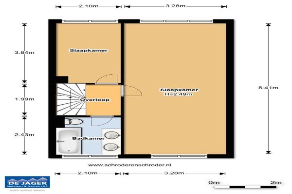
Het adres van deze woning uit 1994 is Heivlinderweg 11 te Diemen. Het pand heeft een oppervlakte van 130m² en een perceeloppervlakte van 126m² en heeft 4 kamers kamers waarvan 3 slaapkamers. De geschatte waarde van deze woning is € 397.500.

Bekijk alle woningen in Vlindertuin en Scheepskwartier-Zuid

Gegevens van Eengezinswoning, tussenwoning

Bouwjaar
1994
Geschatte waarde
€ 397.500
Oppervlakte
130 m2
Inhoud
415 m3
Aantal kamers
4 kamers
Slaapkamers
3
Badkamers
1 badkamer en 1 apart toilet
Soort bouw
Bestaande bouw
Eigendomssituatie
Volle eigendom
Ligging
Aan park, aan rustige weg, in woonwijk en vrij uitzicht
Tuin
Achtertuin en voortuin
Achtertuin
42 m² (7,45m diep en 5,7m breed)

Voorzieningen in de buurt

Binnenkijken bij Heivlinderweg 11 te Diemen

Meer meldingen in deze omgeving

Nieuw bedrijf
Oktober 2025
Distelvlinderweg 2, 1113KB Diemen

Nieuw bedrijf
Oktober 2025
Hermelijnvlinder 227, 1113LE Diemen

Nieuw bedrijf
Oktober 2025
Heivlinderweg 50, 1113LT Diemen

Nieuw bedrijf
Oktober 2025
Schouw 36, 1113HZ Diemen

Nieuw bedrijf
Oktober 2025
Heivlinderweg 50, 1113LT Diemen

112 melding
Maandag 27-10-2025 om 06:37
Diemerpolderweg, 1113HJ Diemen

112 melding
Zaterdag 25-10-2025 om 03:12
Distelvlinderweg, Diemen

112 melding
Vrijdag 24-10-2025 om 14:22
Agaatvlinder, Diemen

Direct een e-mail ontvangen bij nieuwe meldingen in deze regio?

Meld je dan GRATIS aan voor de Oozo Alert service voor Vlindertuin en Scheepskwartier-Zuid

Instellen

Meer nieuws in Vlindertuin en Scheepskwartier-Zuid

Weten hoe eenvoudig het is om af te vallen? Zonder pillen en smeersels en zonder je in het zweet te werken!
Kijk op eenvoudig-afvallen.nl

© 2012 - 2025 OOZO.nl - info@oozo.nl - Gegevens verwijderen? | Disclaimer | Privacy statement