Woning Klipperweg 79 Diemen

Klipperweg 79, 1113GT Diemen

Ontvang updates voor Vlindertuin en Scheepskwartier-Zuid

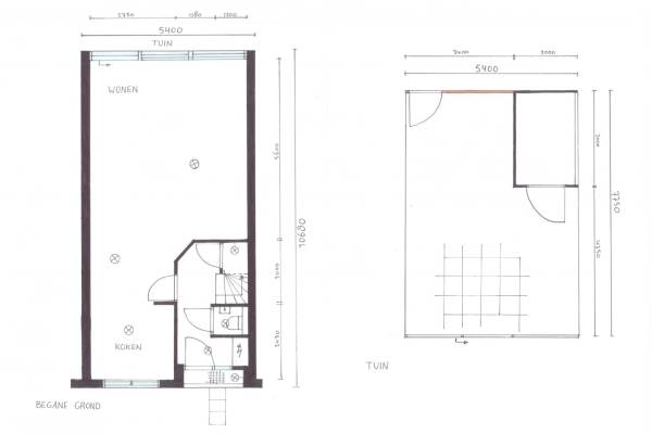
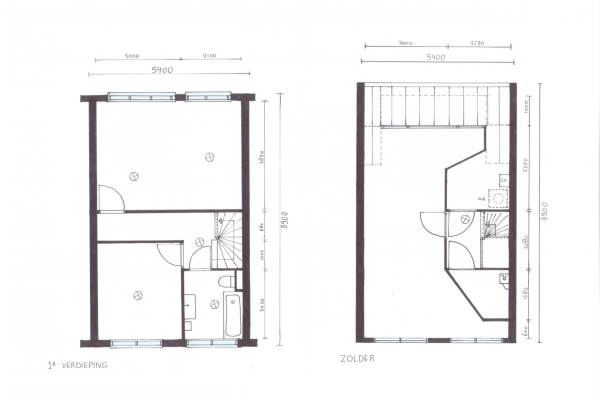
Het adres van deze woning is Klipperweg 79 te Diemen. Het pand heeft een oppervlakte van 129m² en een perceeloppervlakte van 115m² en heeft 4 kamers kamers waarvan 3 slaapkamers. De geschatte waarde van deze woning is € 389.900.

Bekijk alle woningen in Vlindertuin en Scheepskwartier-Zuid

Gegevens van Eengezinswoning, tussenwoning

Geschatte waarde
€ 389.900
Oppervlakte
129 m2
Inhoud
351 m3
Aantal kamers
4 kamers
Slaapkamers
3
Badkamers
1 badkamer en 1 apart toilet
Soort bouw
Bestaande bouw
Eigendomssituatie
Volle eigendom
Ligging
Aan rustige weg en in woonwijk
Tuin
Achtertuin en voortuin
Achtertuin
39 m² (7,79m diep en 5,01m breed)

Voorzieningen in de buurt

Binnenkijken bij Klipperweg 79 te Diemen

Meer meldingen in deze omgeving

Nieuw bedrijf
November 2025
Heivlinderweg 15, 1113KR Diemen

Nieuw bedrijf
November 2025
Kuifvlinder 23, 1113LP Diemen

Nieuw bedrijf
November 2025
Kuifvlinder 23, 1113LP Diemen

Nieuw bedrijf
November 2025
Botterweg 20, 1113HT Diemen

112 melding
Woensdag 19-11-2025 om 06:22
Hermelijnvlinder, Diemen

112 melding
Zondag 16-11-2025 om 11:58
Distelvlinderweg, Diemen

112 melding
Zondag 16-11-2025 om 11:58
Distelvlinderweg, Diemen

Faillissement
Woensdag 12-11-2025
Schouw 32, 1113HZ Diemen

Direct een e-mail ontvangen bij nieuwe meldingen in deze regio?

Meld je dan GRATIS aan voor de Oozo Alert service voor Vlindertuin en Scheepskwartier-Zuid

Instellen

Meer nieuws in Vlindertuin en Scheepskwartier-Zuid

Weten hoe eenvoudig het is om af te vallen? Zonder pillen en smeersels en zonder je in het zweet te werken!
Kijk op eenvoudig-afvallen.nl

© 2012 - 2025 OOZO.nl - info@oozo.nl - Gegevens verwijderen? | Disclaimer | Privacy statement