Woning Berghumerstraat 34 Denekamp

Berghumerstraat 34, 7591GZ Denekamp

Ontvang updates voor Kerkeres

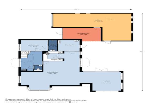
Het adres van deze woning uit 2000 is Berghumerstraat 34 te Denekamp. Het pand heeft een oppervlakte van 222m² en een perceeloppervlakte van 11500m² en heeft 5 kamers kamers waarvan 4 slaapkamers. De geschatte waarde van deze woning is € 775.000.

Bekijk alle woningen in Kerkeres

Gegevens van Landhuis, vrijstaande woning

Bouwjaar
2000
Geschatte waarde
€ 775.000
Oppervlakte
222 m2
Inhoud
1131 m3
Aantal kamers
5 kamers
Slaapkamers
4
Badkamers
2 badkamers en 2 aparte toiletten
Soort bouw
Bestaande bouw
Eigendomssituatie
Volle eigendom
Ligging
Aan bosrand en vrij uitzicht
Tuin
Tuin rondom

Voorzieningen in de buurt

Boodschappen0,4 km
Grote supermarkt0,5 km
Cafetaria0,5 km
Restaurant0,5 km
Huisarts0,6 km
Ziekenhuis9,8 km
Kinderdagverblijf0,5 km
BSO0,7 km
Alle voorzieningen in Kerkeres

Binnenkijken bij Berghumerstraat 34 te Denekamp

Meer meldingen in deze omgeving

Nieuw bedrijf
December 2025
dokter Hondelinkstraat 38, 7591AC Denekamp

Nieuw bedrijf
December 2025
Meester Lazonderstraat 14, 7591VT Denekamp

Nieuw bedrijf
November 2025
Meester Lazonderstraat 49, 7591VV Denekamp

Binnenkijken bij
Vrijdag 14-11-2025
Meester Lazonderstraat 30, 7591VS Denekamp

Binnenkijken bij
Dinsdag 11-11-2025
Malandstraat 20, 7591AK Denekamp

Binnenkijken bij
Woensdag 29-10-2025
burgemeester Wijniastraat 42, 7591AH Denekamp

Binnenkijken bij
Woensdag 29-10-2025
Meester Dingeldeinstraat 1A, 7591TH Denekamp

112 melding
Woensdag 15-10-2025 om 06:46
burgemeester Wijniastraat, Denekamp

Direct een e-mail ontvangen bij nieuwe meldingen in deze regio?

Meld je dan GRATIS aan voor de Oozo Alert service voor Kerkeres

Instellen

Meer nieuws in Kerkeres

Weten hoe eenvoudig het is om af te vallen? Zonder pillen en smeersels en zonder je in het zweet te werken!
Kijk op eenvoudig-afvallen.nl

© 2012 - 2025 OOZO.nl - info@oozo.nl - Gegevens verwijderen? | Disclaimer | Privacy statement