Woning Kappelhofsweg 4 Denekamp

Kappelhofsweg 4, 7591ZZ Denekamp

Ontvang updates voor Denekamp

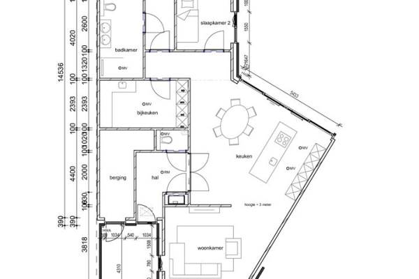
Het adres van deze woning uit 2025 is Kappelhofsweg 4 te Denekamp. Het pand heeft een oppervlakte van 135m² en heeft 3 kamers kamers waarvan 2 slaapkamers. De geschatte waarde van deze woning is € 567.000.

Bekijk alle woningen in Denekamp

Gegevens van Bungalow, tussenwoning

Bouwjaar
2025
Geschatte waarde
€ 567.000
Oppervlakte
135 m2
Inhoud
459 m3
Aantal kamers
3 kamers
Slaapkamers
2
Badkamers
1 badkamer en 1 apart toilet
Soort bouw
Nieuwbouw
Ligging
In woonwijk
Tuin
Achtertuin
Achtertuin
49 m² (7,00 meter diep en 7,00 meter breed)

Voorzieningen in de buurt

Boodschappen0,6 km
Grote supermarkt1,0 km
Cafetaria0,9 km
Restaurant0,8 km
Huisarts0,8 km
Ziekenhuis9,5 km
Kinderdagverblijf0,7 km
BSO0,7 km
Alle voorzieningen in Denekamp

Binnenkijken bij Kappelhofsweg 4 te Denekamp

Meer meldingen in deze omgeving

112 melding
Zaterdag 4-10-2025 om 10:45
Het Bosman, 7591WL Denekamp

112 melding
Donderdag 2-10-2025 om 17:04
Ootmarsumsestraat, 7591EP Denekamp

112 melding
Donderdag 2-10-2025 om 17:04
Ootmarsumsestraat, 7591EP Denekamp


Binnenlands nieuws
Donderdag 2-10-2025
Denekamp

Binnenkijken bij
Donderdag 2-10-2025
de Kievit 81, 7591LC Denekamp

Binnenlands nieuws
Woensdag 1-10-2025
Denekamp

Binnenkijken bij
Woensdag 1-10-2025
Düttingstraat 8, 7591BJ Denekamp

Direct een e-mail ontvangen bij nieuwe meldingen in deze regio?

Meld je dan GRATIS aan voor de Oozo Alert service voor Denekamp

Instellen

Meer nieuws in Denekamp

Weten hoe eenvoudig het is om af te vallen? Zonder pillen en smeersels en zonder je in het zweet te werken!
Kijk op eenvoudig-afvallen.nl

© 2012 - 2025 OOZO.nl - info@oozo.nl - Gegevens verwijderen? | Disclaimer | Privacy statement