Woning Disseroltweg 12 Lattrop-Breklenkamp

Disseroltweg 12, 7635NG Lattrop-Breklenkamp

Ontvang updates voor Lattrop kern

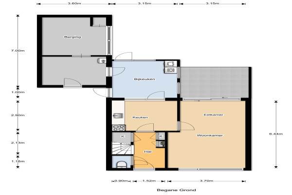
Het adres van deze woning uit 1971 is Disseroltweg 12 te Lattrop-Breklenkamp. Het pand heeft een oppervlakte van 90m² en een perceeloppervlakte van 409m² en heeft 6 kamers kamers waarvan 4 slaapkamers. De geschatte waarde van deze woning is € 195.000.

Bekijk alle woningen in Lattrop kern

Gegevens van Eengezinswoning, 2-onder-1-kapwoning

Bouwjaar
1971
Geschatte waarde
€ 195.000
Oppervlakte
90 m2
Inhoud
380 m3
Aantal kamers
6 kamers
Slaapkamers
4
Soort bouw
Bestaande bouw
Ligging
In woonwijk
Tuin
Achtertuin
Achtertuin
216 m² (24m diep en 9m breed)

Voorzieningen in de buurt

Boodschappen0,2 km
Grote supermarkt5,1 km
Cafetaria5,8 km
Restaurant0,2 km
Huisarts6,4 km
Ziekenhuis6,3 km
Kinderdagverblijf5,2 km
BSO5,2 km
Alle voorzieningen in Lattrop kern

Binnenkijken bij Disseroltweg 12 te Lattrop-Breklenkamp

Meer meldingen in deze omgeving

Nieuw bedrijf
Mei 2026
Disseroltweg 52, 7635NG Lattrop-Breklenkamp

112 melding
Woensdag 22-4-2026 om 10:53
Disseroltweg, Lattrop-Breklenkamp

112 melding
Woensdag 22-4-2026 om 10:52
Disseroltweg, Lattrop-Breklenkamp

Binnenkijken bij
Woensdag 8-4-2026
Pastoor Brandtsstraat 9, 7635LW Lattrop-Breklenkamp

Binnenkijken bij
Maandag 6-4-2026
Molenhof 1, 7635NX Lattrop-Breklenkamp

Binnenkijken bij
Dinsdag 27-1-2026
Brandkolk 1, 7635LZ Lattrop-Breklenkamp

Binnenkijken bij
Vrijdag 21-11-2025
Pastoor Brandtsstraat 10, 7635LW Lattrop-Breklenkamp

Binnenkijken bij
Dinsdag 11-11-2025
Hoonhorst 29, 7635NW Lattrop-Breklenkamp

Direct een e-mail ontvangen bij nieuwe meldingen in deze regio?

Meld je dan GRATIS aan voor de Oozo Alert service voor Lattrop kern

Instellen

Meer nieuws in Lattrop kern

Weten hoe eenvoudig het is om af te vallen? Zonder pillen en smeersels en zonder je in het zweet te werken!
Kijk op eenvoudig-afvallen.nl

© 2012 - 2026 OOZO.nl - info@oozo.nl - Gegevens verwijderen? | Disclaimer | Privacy statement