Woning Doctor Huber Noodtstraat 13-26 DOETINCHEM

Doctor Huber Noodtstraat 13--26, 7001DS DOETINCHEM

Ontvang updates voor Stadscentrum-Noord

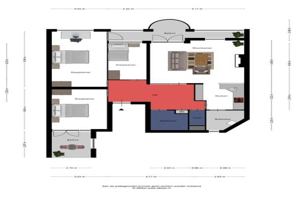
Het adres van deze woning uit 1980 is Doctor Huber Noodtstraat 13-26 te DOETINCHEM. Het pand heeft een oppervlakte van 95m² en heeft 4 kamers kamers waarvan 3 slaapkamers. De geschatte waarde van deze woning is € 239.000.

Bekijk alle woningen in Stadscentrum-Noord

Gegevens van Appartement

Bouwjaar
1980
Geschatte waarde
€ 239.000
Oppervlakte
95 m2
Aantal kamers
4 kamers
Slaapkamers
3
Tuin
Balkon aanwezig

Voorzieningen in de buurt

Boodschappen0,2 km
Grote supermarkt0,3 km
Cafetaria0,2 km
Restaurant0,2 km
Huisarts0,5 km
Ziekenhuis1,4 km
Kinderdagverblijf0,4 km
BSO0,7 km
Alle voorzieningen in Stadscentrum-Noord

Binnenkijken bij Doctor Huber Noodtstraat 13-26 te DOETINCHEM

Meer meldingen in deze omgeving

112 melding
Maandag 27-4-2026 om 09:25
Nieuweweg, 7001DB Doetinchem

Nieuw bedrijf
April 2026
Raadhuisstraat 25, 7001EX Doetinchem

112 melding
Donderdag 23-4-2026 om 15:17
Tjalmastraat, Doetinchem

112 melding
Woensdag 22-4-2026 om 16:11
Dr Huber Noodtstraat, 7001DX Doetinchem

112 melding
Woensdag 22-4-2026 om 16:11
Dr Huber Noodtstraat, 7001DX Doetinchem

112 melding
Woensdag 22-4-2026 om 15:47
Tjalmastraat, Doetinchem

112 melding
Woensdag 15-4-2026 om 08:10
Nieuweweg, 7001DC Doetinchem

112 melding
Woensdag 15-4-2026 om 08:10
Nieuweweg, 7001DC Doetinchem

Direct een e-mail ontvangen bij nieuwe meldingen in deze regio?

Meld je dan GRATIS aan voor de Oozo Alert service voor Stadscentrum-Noord

Instellen

Meer nieuws in Stadscentrum-Noord

Weten hoe eenvoudig het is om af te vallen? Zonder pillen en smeersels en zonder je in het zweet te werken!
Kijk op eenvoudig-afvallen.nl

© 2012 - 2026 OOZO.nl - info@oozo.nl - Gegevens verwijderen? | Disclaimer | Privacy statement