Woning Veenmos Wehl

Veenmos , 7031LW Wehl

Ontvang updates voor Wehl-Zuidwest

Het adres van deze woning uit 2017 is Veenmos te Wehl. Het pand heeft een oppervlakte van 80m² en een perceeloppervlakte van 235m² en heeft 2 kamers kamers waarvan 1 slaapkamers. De geschatte waarde van deze woning is € 223.500.

Bekijk alle woningen in Wehl-Zuidwest

Gegevens van Eengezinswoning, 2-onder-1-kapwoning

Bouwjaar
2017
Geschatte waarde
€ 223.500
Oppervlakte
80 m2
Inhoud
385 m3
Aantal kamers
2 kamers
Slaapkamers
1
Soort bouw
Nieuwbouw
Eigendomssituatie
Volle eigendom
Ligging
Aan rustige weg en in woonwijk
Tuin
Achtertuin en voortuin
Achtertuin
150 m² (24,5m diep en 9m breed)

Voorzieningen in de buurt

Boodschappen1,1 km
Grote supermarkt1,0 km
Cafetaria1,1 km
Restaurant1,4 km
Huisarts1,0 km
Ziekenhuis7,5 km
Kinderdagverblijf1,0 km
BSO1,4 km
Alle voorzieningen in Wehl-Zuidwest

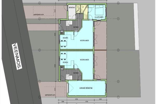
Binnenkijken bij Veenmos te Wehl

Meer meldingen in deze omgeving

112 melding
Dinsdag 30-12-2025 om 15:50
Kleefse Allee, 7031LC Wehl

112 melding
Dinsdag 30-12-2025 om 15:50
Kleefse Allee, 7031LC Wehl

112 melding
Dinsdag 30-12-2025 om 15:23
Kleefse Allee, 7031LC Wehl

112 melding
Maandag 22-12-2025 om 15:49
Ziggel, 7031LG Wehl

112 melding
Maandag 22-12-2025 om 13:16
Motketel, 7031LB Wehl

Nieuw bedrijf
December 2025
Kolkakker 17, 7031LD Wehl

112 melding
Donderdag 18-12-2025 om 08:01
Ziggel, 7031LG Wehl

112 melding
Dinsdag 16-12-2025 om 15:12
Motketel, 7031LB Wehl

Direct een e-mail ontvangen bij nieuwe meldingen in deze regio?

Meld je dan GRATIS aan voor de Oozo Alert service voor Wehl-Zuidwest

Instellen

Meer nieuws in Wehl-Zuidwest

Weten hoe eenvoudig het is om af te vallen? Zonder pillen en smeersels en zonder je in het zweet te werken!
Kijk op eenvoudig-afvallen.nl

© 2012 - 2025 OOZO.nl - info@oozo.nl - Gegevens verwijderen? | Disclaimer | Privacy statement