Woning Bessenweg 49 Doetinchem

Bessenweg 49, 7006SK Doetinchem

Ontvang updates voor De Huet fase 4

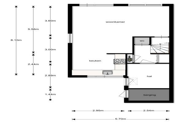
Het adres van deze woning uit 1992 is Bessenweg 49 te Doetinchem. Het pand heeft een oppervlakte van 120m² en een perceeloppervlakte van 234m² en heeft 4 kamers kamers waarvan 3 slaapkamers. De geschatte waarde van deze woning is € 191.500.

Bekijk alle woningen in De Huet fase 4

Gegevens van Eengezinswoning, 2-onder-1-kapwoning

Bouwjaar
1992
Geschatte waarde
€ 191.500
Oppervlakte
120 m2
Inhoud
410 m3
Aantal kamers
4 kamers
Slaapkamers
3
Badkamers
1 badkamer en 1 apart toilet
Soort bouw
Bestaande bouw
Eigendomssituatie
Volle eigendom
Ligging
Aan rustige weg, in woonwijk en vrij uitzicht
Tuin
Achtertuin en voortuin
Achtertuin
100 m² (10m diep en 10m breed)

Voorzieningen in de buurt

Boodschappen0,5 km
Grote supermarkt0,5 km
Cafetaria0,5 km
Restaurant0,5 km
Huisarts0,6 km
Ziekenhuis3,9 km
Kinderdagverblijf0,5 km
BSO0,6 km
Alle voorzieningen in De Huet fase 4

Binnenkijken bij Bessenweg 49 te Doetinchem

Meer meldingen in deze omgeving

Binnenkijken bij
Zaterdag 21-2-2026
Bessenweg 33, 7006SK Doetinchem

112 melding
Vrijdag 20-2-2026 om 10:50
Belderstraat, 7006GD Doetinchem

112 melding
Vrijdag 20-2-2026 om 10:50
Belderstraat, 7006GD Doetinchem

112 melding
Donderdag 19-2-2026 om 14:52
Perebloesem, 7006ML Doetinchem

112 melding
Donderdag 19-2-2026 om 08:01
De Vlierbes, 7006SC Doetinchem

112 melding
Woensdag 18-2-2026 om 20:24
Plattenburgstraat, Doetinchem

112 melding
Woensdag 18-2-2026 om 20:24
Plattenburgstraat, Doetinchem

112 melding
Woensdag 18-2-2026 om 20:24
Plattenburgstraat, Doetinchem

Direct een e-mail ontvangen bij nieuwe meldingen in deze regio?

Meld je dan GRATIS aan voor de Oozo Alert service voor De Huet fase 4

Instellen

Meer nieuws in De Huet fase 4

Weten hoe eenvoudig het is om af te vallen? Zonder pillen en smeersels en zonder je in het zweet te werken!
Kijk op eenvoudig-afvallen.nl

© 2012 - 2026 OOZO.nl - info@oozo.nl - Gegevens verwijderen? | Disclaimer | Privacy statement