Woning Gaffeldreef 27 Doetinchem

Gaffeldreef 27, 7006KP Doetinchem

Ontvang updates voor De Huet fase 5

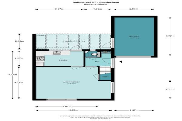
Het adres van deze woning is Gaffeldreef 27 te Doetinchem. Het pand heeft een oppervlakte van 98m² en een perceeloppervlakte van 260m² en heeft 5 kamers kamers waarvan 4 slaapkamers. De geschatte waarde van deze woning is € 215.000.

Bekijk alle woningen in De Huet fase 5

Gegevens van Eengezinswoning, 2-onder-1-kapwoning

Geschatte waarde
€ 215.000
Oppervlakte
98 m2
Inhoud
399 m3
Aantal kamers
5 kamers
Slaapkamers
4
Badkamers
1 badkamer en 1 apart toilet
Soort bouw
Bestaande bouw
Eigendomssituatie
Volle eigendom
Ligging
Aan rustige weg en in woonwijk
Tuin
Achtertuin
Achtertuin
98 m² (10m diep en 9,8m breed)

Voorzieningen in de buurt

Boodschappen0,6 km
Grote supermarkt0,6 km
Cafetaria1,7 km
Restaurant1,6 km
Huisarts1,6 km
Ziekenhuis4,0 km
Kinderdagverblijf0,9 km
BSO1,0 km
Alle voorzieningen in De Huet fase 5

Binnenkijken bij Gaffeldreef 27 te Doetinchem

Meer meldingen in deze omgeving

Nieuw bedrijf
November 2025
Wannedreef 44, 7006LV Doetinchem

Nieuw bedrijf
November 2025
Wannedreef 49, 7006LS Doetinchem

112 melding
Maandag 24-11-2025 om 08:20
Eggedreef, 7006KH Doetinchem

112 melding
Vrijdag 21-11-2025 om 15:06
Sikkeldreef, 7006KT Doetinchem

112 melding
Vrijdag 21-11-2025 om 15:05
Sikkeldreef, 7006KT Doetinchem

112 melding
Vrijdag 21-11-2025 om 14:33
Eggedreef, 7006KH Doetinchem

Binnenkijken bij
Vrijdag 21-11-2025
Sikkeldreef 168, 7006KZ Doetinchem

Binnenkijken bij
Vrijdag 21-11-2025
Boekweitdreef 204, 7006LG Doetinchem

Direct een e-mail ontvangen bij nieuwe meldingen in deze regio?

Meld je dan GRATIS aan voor de Oozo Alert service voor De Huet fase 5

Instellen

Meer nieuws in De Huet fase 5

Weten hoe eenvoudig het is om af te vallen? Zonder pillen en smeersels en zonder je in het zweet te werken!
Kijk op eenvoudig-afvallen.nl

© 2012 - 2025 OOZO.nl - info@oozo.nl - Gegevens verwijderen? | Disclaimer | Privacy statement