Woning Delistraat 53 Doetinchem

Delistraat 53, 7009EL Doetinchem

Ontvang updates voor De IJkenberg

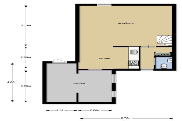
Het adres van deze woning uit 1975 is Delistraat 53 te Doetinchem. Het pand heeft een oppervlakte van 117m² en een perceeloppervlakte van 172m² en heeft 5 kamers kamers waarvan 4 slaapkamers. De geschatte waarde van deze woning is € 165.000.

Bekijk alle woningen in De IJkenberg

Gegevens van Eengezinswoning, hoekwoning

Bouwjaar
1975
Geschatte waarde
€ 165.000
Oppervlakte
117 m2
Inhoud
495 m3
Aantal kamers
5 kamers
Slaapkamers
4
Badkamers
1 badkamer en 1 apart toilet
Soort bouw
Bestaande bouw
Eigendomssituatie
Volle eigendom
Ligging
In woonwijk
Tuin
Achtertuin en voortuin

Voorzieningen in de buurt

Boodschappen0,4 km
Grote supermarkt0,4 km
Cafetaria0,3 km
Restaurant0,5 km
Huisarts0,5 km
Ziekenhuis0,8 km
Kinderdagverblijf0,5 km
BSO0,5 km
Alle voorzieningen in De IJkenberg

Binnenkijken bij Delistraat 53 te Doetinchem

Meer meldingen in deze omgeving

112 melding
Woensdag 19-11-2025 om 07:31
Oude Rozengaardseweg, Doetinchem

112 melding
Woensdag 19-11-2025 om 07:31
Oude Rozengaardseweg, Doetinchem

112 melding
Dinsdag 18-11-2025 om 11:44
Atjehstraat, Doetinchem

112 melding
Dinsdag 18-11-2025 om 11:10
Atjehstraat, Doetinchem

112 melding
Maandag 17-11-2025 om 14:03
Atjehstraat, 7009EJ Doetinchem

Faillissement
Maandag 17-11-2025
Oude Rozengaardseweg 114, 7009ND Doetinchem

112 melding
Zondag 16-11-2025 om 16:17
Borneostraat, Doetinchem

112 melding
Vrijdag 14-11-2025 om 13:57
Atjehstraat, Doetinchem

Direct een e-mail ontvangen bij nieuwe meldingen in deze regio?

Meld je dan GRATIS aan voor de Oozo Alert service voor De IJkenberg

Instellen

Meer nieuws in De IJkenberg

Weten hoe eenvoudig het is om af te vallen? Zonder pillen en smeersels en zonder je in het zweet te werken!
Kijk op eenvoudig-afvallen.nl

© 2012 - 2025 OOZO.nl - info@oozo.nl - Gegevens verwijderen? | Disclaimer | Privacy statement